Omschrijving
Woning verkocht: Van Wageningenstraat 1 in Leeuwarden
Zoek je een verrassend ruime en lichte hoekwoning met een praktische indeling én een ruime achtertuin op het zuiden? Dan is dit jouw kans! Deze woning in de rustige wijk Huizum-Bornia biedt een lichte tuingerichte woonkamer, waar je in alle rust kunt ontspannen of gezellig gasten kunt ontvangen. De moderne keukenopstelling biedt alles wat je nodig hebt en staat in open verbinding met de woonkamer, zodat je tijdens het koken altijd contact houdt met het gezin of gasten.
Met drie prima slaapkamers en een strakke badkamer is er voldoende ruimte voor een gezin, een thuiswerkplek of hobbykamer. De tuin ligt op het zuiden, waardoor je de hele dag van de zon kunt genieten. Er is volop ruimte om de tuin naar eigen wens aan te leggen en een fijne zithoek te creëren.
Met de bruisende winkelstraat De Schrans letterlijk om de hoek en zowel station als binnenstad van Leeuwarden binnen 5 fietsminuten bereikbaar, woon je hier op een sfeervolle plek met alle gemakken en voorzieningen op loopafstand.
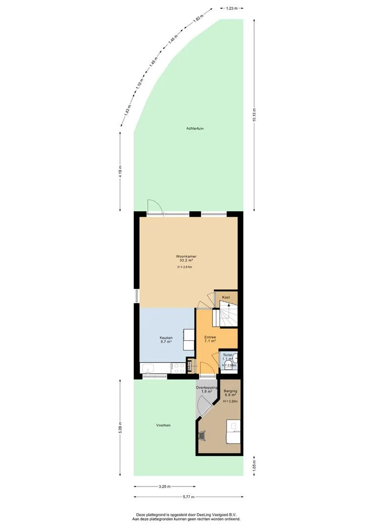
Begane grond:
– Open leefruimte met woonkamer en keuken
– Entree met meterkast, trapopgang en toiletruimte met fontein hangtoilet
– Berging met plaats voor het witgoed en zolder
– Onderhoudsvriendelijke tuin op het zuiden
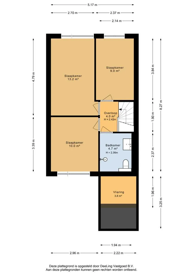
Eerste verdieping:
– 3 prima slaapkamers
– Moderne badkamer met inloopdouche, wastafelcombinatie en 2e hangtoilet
Over de woning:
Deze hoekwoning is gebouwd in 1981, uitgevoerd met betonnen vloeren en een degelijke bouwstijl.
Met 86 m² woonoppervlakte en 3 slaapkamers is er genoeg ruimte voor starters, een gezin en/of een werkplek thuis.
Energielabel C, dak- en muurisolatie, HR en HR++ beglazingen en een ATAG I28C A HR-combiketel uit 2018 zorgen voor een aangenaam en efficiënt woonklimaat en lage maandlasten.
Ben je op zoek naar een instapklare hoekwoning waar je kunt genieten van ruimte, licht en een zonnige tuin? Maak dan snel een afspraak voor een bezichtiging en ervaar zelf de mogelijkheden die deze woning te bieden heeft!


































