Omschrijving
Woning beschikbaar: Tweebaksmarkt 42 – A in Leeuwarden
Ben je op zoek naar een karakteristiek, ruim en licht appartement midden in het historische hart van Leeuwarden? Dan is Tweebaksmarkt 42a zeker een bezichtiging waard. Dit fraaie appartement (102 m²) is gelegen in het beschermd stadgezicht en biedt een unieke combinatie van sfeer, comfort en stads wonen.
Indeling:
Eerste verdieping:
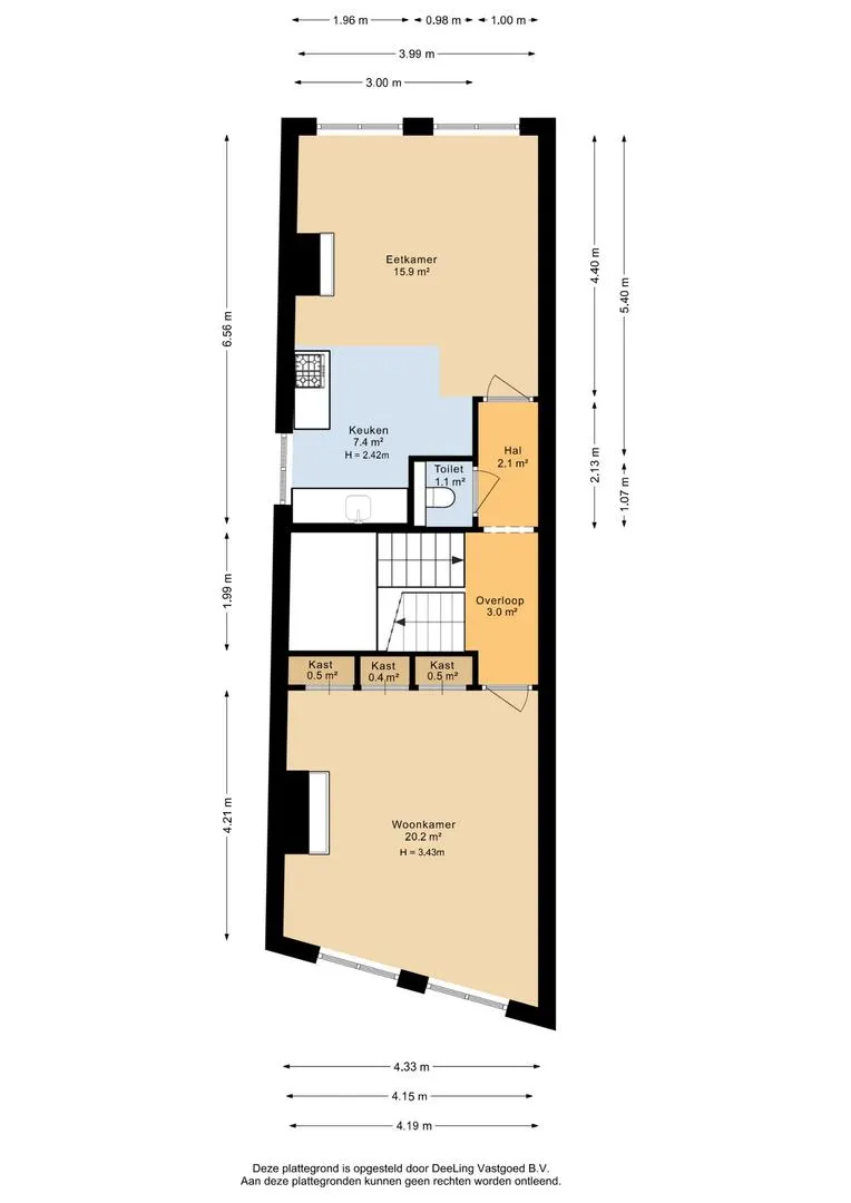
– Via de zijentree kom je binnen in de hal met meterkast en de trapopgang naar de woonverdieping.
– De ruime woonkamer aan de voorzijde (ca. 20 m²) beschikt over grote ramen die zorgen voor veel lichtinval en handige inbouwkasten.
– Vanuit de woonkamer bereik je de overloop met toilet en vaste trap naar de tweede verdieping.
– Aan de achterzijde bevindt zich de eetkamer/keuken, een fijne leefruimte met toegang tot het dakterras, ideaal voor een ochtendkoffie of een ontspannen avond buiten.
Tweede verdieping:
– Twee ruime slaapkamers, beide voorzien van praktische inbouwkasten.
– Een complete badkamer met ligbad, inloopdouche, toilet en wastafel.
Bijzonderheden:
– Gelegen in het sfeervolle centrum van Leeuwarden
– Woonoppervlakte: 102 m²
– Dakterras aan de achterzijde
– Twee royale slaapkamers
– Ligging in beschermd stadgezicht
– Pand moet nog gesplitst worden, hier zijn de eigenaren mee bezig
Over de omgeving:
Tweebaksmarkt 42a ligt op een toplocatie in het oude centrum van Leeuwarden, in een straat vol historie en karakter. Op loopafstand vind je gezellige terrassen, restaurants, winkels, het stadsgroene Hofplein en de prachtige Nieuwestad. Ook culturele hotspots zoals De Harmonie, het Fries Museum en verschillende grachten liggen om de hoek. Dankzij de korte afstand tot zowel het station als de uitvalswegen is de bereikbaarheid uitstekend, terwijl je toch geniet van de authentieke, rustige sfeer van de binnenstad.




























