Omschrijving
Woning verkocht: ’t Leantsje 96 in Gorredijk
In het dorp Gorredijk staat deze tussenwoning te koop. De woning biedt maar liefst vier slaapkamers en een lichte, ruime woon/eetkamer. Zowel de voor- als achtertuin zijn aangelegd en bestraat. Er is voldoende ruimte om van deze woning, jouw eigen woning te maken. Interesse gewekt? Neem dan contact op met ons kantoor in Heerenveen en plan snel een bezichtiging.
Indeling:
Begane grond:
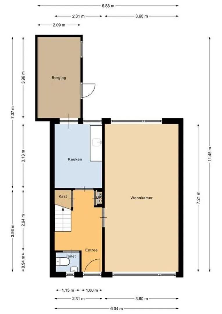
Stap de woning binnen via de hal, waar je direct de trap naar boven en het toilet vindt. De woonkamer biedt volop mogelijkheden om naar eigen smaak in te richten en een fijne leefruimte te creëren. Aansluitend vind je de keuken, voorzien van een standaard keukenblok met potentie tot om naar wens aan te passen. Vanuit de keuken heb je toegang tot de handige berging, ideaal voor extra opslagruimte.
Eerste verdieping:
Op de eerste verdieping zijn drie slaapkamers aanwezig. Allen van verschillend formaat, maar zeker met genoeg ruimte. Tevens is op deze verdieping een badkamer voorzien van douche, toilet en wastafel.
Tweede verdieping:
De tweede verdieping biedt onderdak voor de vierde slaapkamper. Op deze verdieping is ook de cv-ketel.
Goed om te weten:
– Woonoppervlakte: 105 m²;
– Perceeloppervlakte: 155 m²;
– Energielabel: C;
– Elkien voorwaarden zijn van toepassing;
– Schuttingen tussen nr. 98 & 96 & 94 worden herplaatst.
Ben jij enthousiast over deze tussenwoning? Maak dan snel een afspraak voor een bezichtiging!
Alle bezichtigingen (ook niet-huurders) dienen tijdens de bezichtigingsmiddag op donderdag 12september tussen 12:15 uur en 14:15 uur plaats te vinden. Voor een afspraak tijdens de bezichtigingsmiddag kan je bellen met ons kantoor in Sneek. We verwelkomen je graag! De sluiting van de inschrijving eindigt op maandag 16 september om 12:00 uur.
Gorredijk is een gezellig dorp aan de vaart (met sluis in de turfroute). Het dorp heeft alle voorzieningen, zoals meerdere supermarkten, gezellige winkeltjes, grote sportaccommodatie en een groot aantal (sport)verenigingen en meerdere scholen (inclusief voortgezet). De natuurgebieden van Lippenhuizen, Hemrik, Beetsterzwaag, Oldeberkoop, Oudehorne e.d. zijn dichtbij (fietsafstand). Gorredijk is prima bereikbaar door de prima busverbindingen en de ligging nabij de A7, maar wel buiten gehoorafstand.
HUUR JE OP DIT MOMENT EEN WONING VAN ELKIEN? DAN HEB JE VOORRANG OM IN TE SCHRIJVEN VOOR DEZE WONING EN TE KOPEN VOOR DE VRAAGPRIJS (zie voorwaarden Elkien in de tekst hieronder**).
Wordt de woning niet verkocht aan een huurder, dan wordt deze gegund aan de hoogste bieder met de koopsom als minimale inschrijfprijs. Inschrijving voor huurders alleen geldig met volledig ingevuld inschrijfformulier incl. documenten
** Jij huurt op dit moment een woning van Elkien (ingeschreven staan als woningzoekende telt niet);
** Indien meerdere huurders zich hebben ingeschreven, wordt de woning toegewezen op basis van loting;
** Indien jij huurder bent en met een medehuurder wilt kopen, dient deze tenminste 2 jaar ingeschreven te staan op hetzelfde huuradres (medehuurderschap) of van rechtswege door huwelijk/geregistreerd partnerschap of jullie huren ieder een woning van Elkien en willen deze woning samen kopen.
Voorwaarden Elkien:
* De woning wordt verkocht in de huidige staat;
* Antispeculatiebeding: de woning mag niet binnen drie jaar worden door verkocht;
* Verbod van verhuur: de woning mag drie jaar niet worden verhuurd. Uitzondering eerste graad bloedverwanten;
* Ouderdomsclausule: de bouwkwaliteit ligt lager dan bij nieuwe woningen;
* Asbest: de woning kan asbest bevatten, koper aanvaardt dit risico;
* Voorbehoud financiering: maximaal 6 weken na mondeling akkoord koper/verkoper;
* Sleuteloverdracht: maximaal 8 weken na mondeling akkoord koper/verkoper;
* Indien de woning later passeert dan 8 weken, betaalt koper € 20,- boete per dag aan verkoper;
* Koper dient een natuurlijk persoon te zijn;
* De leveringsakte wordt betaald door Elkien (huisnotaris Breuker Vellinga Wiersma Notarissen te Drachten).
Uw adviseur: Anniek Siebring




































