Omschrijving
Woning verkocht onder voorbehoud: Suster V.d. Vegtstrjitte 13 in Akkrum
Zie jij jezelf al wonen in deze charmante hoekwoning aan de Suster van der Vegtstrjitte 13 in Akkrum? Met een rustige ligging, een kade met schitterend water aan het einde van het woonblok en een open indeling vol licht is dit dé plek om je eerste stap op de woningmarkt te zetten. Deze woning biedt de perfecte basis om je eigen design en inrichting helemaal tot leven te brengen. Van een keuken in jouw favoriete stijl tot gezellige kamers vol kleur, hier kun jij echt je eigen stempel drukken!
Akkrum is gunstig gelegen tussen Heerenveen en Leeuwarden. Een dorp, ooit ontstaan in de middeleeuwen als terpdorp aan het riviertje de Boarn, thans met een levendige kern. Het dorp beschikt over goede watersportvoorzieningen, een diversiteit aan lokale winkels, supermarkt, restaurants en een brede school. Akkrum is gelegen aan de A32 (Zwolle-Leeuwarden) en op enkele autominuten van de A6-A7 (Amsterdam-Heerenveen) ook heeft het een NS treinstation.
Indeling:
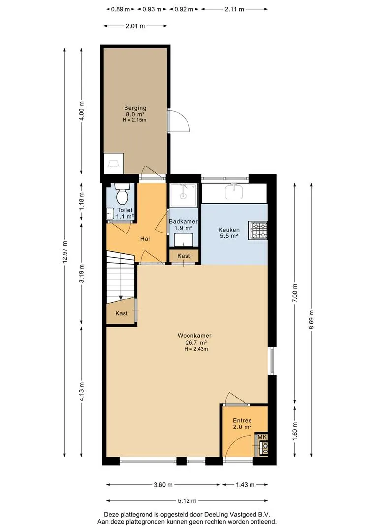
Begane grond
Je komt binnen in de entree met de meterkast en stapt zo de ruime woonkamer in, die naadloos overloopt in de open keuken. Het keukenblokje is eenvoudig maar functioneel, met een raam dat uitkijkt op de achtertuin. Vanuit de hal heb je toegang tot de trapopgang, een nette compacte badkamer, een apart toilet en de handige berging met plek voor je witgoed.
Verdieping:
Op de eerste verdieping bevinden zich drie slaapkamers van diverse afmetingen. De master bedroom is circa 14m².
Vanaf de overloop kun je met de vlizo trap naar de bergzolder. De bergzolder biedt voldoende bergruimte voor spullen die je niet wekelijks nodig hebt.
Buiten:
De achtertuin is eenvoudig aan te leggen en volledig naar jouw wens in te richten. De ruime voortuin ligt aan het rustige hofje en biedt een prachtig uitzicht op de kade en het water – ideaal voor een gezellig zitje of een bankje om van het zonnetje te genieten.
Goed om te weten:
– Bouwjaar: 1983
– Woonoppervlakte 82 m²
– Perceeloppervlakte 186 m²
– Energielabel C
– Mandelig voetpad achter de woning
– Elkien voorwaarden van toepassing
Ben jij net zo enthousiast als wij zijn over deze leuke hoekwoning? Aarzel dan niet en maak snel een afspraak voor een bezichtiging!
Alle bezichtigingen (ook niet-huurders) dienen tijdens de bezichtigingsochtend op 12 februari tussen 13:30 uur en 15:30 uur plaats te vinden. Voor een afspraak tijdens de bezichtigingsochtend kan je bellen met ons kantoor in Heerenveen. We verwelkomen je graag! De sluiting van de inschrijving eindigt op donderdag 19 februari om 12:00 uur.
HUUR JE OP DIT MOMENT EEN WONING VAN ELKIEN? DAN HEB JE VOORRANG OM IN TE SCHRIJVEN VOOR DEZE WONING EN TE KOPEN VOOR DE VRAAGPRIJS (zie voorwaarden Elkien in de tekst hieronder**).
Wordt de woning niet verkocht aan een huurder, dan wordt deze gegund aan de hoogste bieder met de koopsom als minimale inschrijfprijs.
Voorwaarden Elkien:
* De woning wordt verkocht in de huidige staat;
* Antispeculatiebeding: de woning mag niet binnen drie jaar worden door verkocht;
* Verbod van verhuur uitgezonderd verhuur aan eerste graad bloedverwanten: de woning mag drie jaar niet worden verhuurd.
* Ouderdomsclausule: de bouwkwaliteit ligt lager dan bij nieuwe woningen;
* Voorbehoud financiering: maximaal 6 weken na mondeling akkoord koper/verkoper;
* Sleuteloverdracht: maximaal 8 weken na mondeling akkoord koper/verkoper;
* Indien de woning later passeert dan 8 weken, betaalt koper € 20,- boete per dag aan verkoper;
* Koper dient een natuurlijk persoon te zijn;
* De leveringsakte wordt betaald door Elkien (huisnotaris Breuker Netwerk Notarissen te Drachten);
** Jij huurt op dit moment een woning van Elkien (ingeschreven staan als woningzoekende telt niet);
** Indien meerdere huurders zich hebben ingeschreven, wordt de woning toegewezen op basis van loting;
** Indien jij huurder bent en met een medehuurder wilt kopen, dient deze tenminste 2 jaar ingeschreven te staan op hetzelfde huuradres (medehuurderschap) of van rechtswege door huwelijk/geregistreerd partnerschap of jullie huren ieder een woning van Elkien en willen deze woning samen kopen
































