Omschrijving
Woning beschikbaar: Stationsstraat 221 in Heerenveen
Aan de Stationsstraat 221 in Heerenveen vind je dit nette appartement op de derde woonlaag. De ligging is bijzonder gunstig: het NS-station en busstation bevinden zich letterlijk om de hoek, net als het gezellige centrum met winkels en horeca. Of je nu met het OV reist of snel even een boodschap wilt doen, hier woon je centraal en praktisch.
Heerenveen – Levendig en goed bereikbaar
Heerenveen staat bekend om zijn actieve karakter en fijne woonklimaat. Sportliefhebbers kunnen hun hart ophalen met Thialf en het Abe Lenstra Stadion vlakbij. Verder zijn supermarkten, winkels en eetgelegenheden allemaal op loopafstand. Dankzij de ligging dichtbij het station ben je ook zo in steden als Leeuwarden of Zwolle.
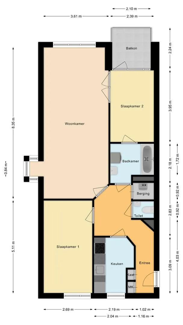
Indeling
Het complex beschikt over een afgesloten entree met intercom. Binnen heb je de keuze tussen de trap of lift. De woning zelf begint met een gang die toegang geeft tot de eerste slaapkamer, de keuken, het toilet, kastruimte en de woonkamer. De woonkamer is licht en prettig van formaat, met dubbele deuren naar een tweede kamer. Deze ruimte kun je op meerdere manieren gebruiken: als volwaardige slaapkamer, werk- of studeerkamer, of als je meer openheid wilt kun je deze ruimte ook goed samenvoegen met de woonkamer. Vanuit deze slaapkamer heb je toegang tot het balkon. Ruime tweede slaapkamer en een frisse eigentijdse keuken met diverse inbouwapparatuur. De badkamer is bereikbaar vanuit de hal en vanuit een slaapkamer en voorzien van een bad douchecombinatie, wastafel en aansluiting voor witgoed.
Bel voor een bezichtiging en ontdek of dit jouw nieuwe thuis kan worden. Kijk ook voor meer informatie op de unieke website stationsstraat221.nl
Bijzonderheden
– Bouwjaar: 1985;
– Energielabel B;
– Verwarming via HR-combiketel;
– Inpandige berging;
– Bijdrage VvE € 189,04 per maand, voor onderhoud van het complex, liftinstallatie en opstalverzekering.

































