Omschrijving
Woning verkocht: Stal 211 in Drachten
Instapklare twee-onder-een-kapwoning met energielabel A, uitbouw, garage, zonnepanelen en zonnige tuin op het zuidwesten!
In een rustige en kindvriendelijke woonomgeving in de wijk De Trisken staat deze verrassend ruime en uitstekend onderhouden twee-onder-een-kapwoning. De woning is in 2007 fors uitgebouwd, waarbij zowel een royale tuingerichte zitkamer als een verlengde garage/berging is gerealiseerd. Daarbij is de garage toen voorzien van een nieuw dak.
Wonen in De Trisken
De Trisken is een rustige en kindvriendelijke woonwijk aan de rand van Drachten, geliefd bij gezinnen en jonge stellen. De wijk biedt een fijne mix van groen, speelvoorzieningen en ruime opzet, met alle dagelijkse voorzieningen zoals basisscholen, kinderopvang en openbaar vervoer op loopafstand. Dankzij de gunstige ligging ben je bovendien snel in het centrum van Drachten of op de uitvalswegen richting Leeuwarden, Groningen en Heerenveen. De ligging van Stal 211 is ideaal: in een rustige straat met alleen bestemmingsverkeer.
De woning is in de loop der jaren met zorg en aandacht verbeterd en verduurzaamd. Zo is er in 2014 een moderne keuken geplaatst, zijn er recent schilderwerkzaamheden uitgevoerd en is de woning voorzien van kunststof boeidelen en een onderhoudsarm kunststof dakkapel. In 2024 is er bovendien een nieuwe HR-combiketel geplaatst en er zijn 12 zonnepanelen toegevoegd, wat niet alleen bijdraagt aan een lagere energierekening, maar ook aan het wooncomfort en de duurzaamheid van het huis.
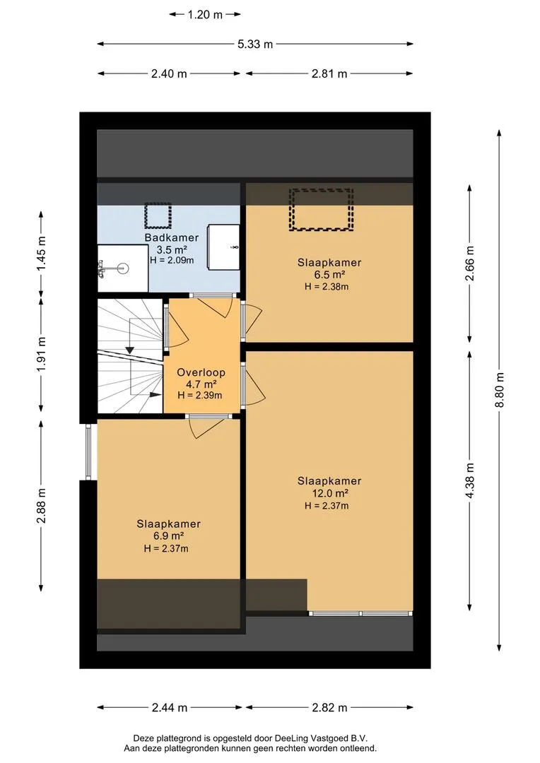
Indeling
Bij binnenkomst valt direct de ruime hal op, voorzien van een laminaatvloer die is doorgelegd naar de woonkamer en keuken. Hier bevinden zich de trapopgang, een modern toilet met fonteintje, garderoberuimte en toegang tot de bijkeuken. Deze bijkeuken is praktisch ingericht met aansluitingen voor wasmachine en droger en biedt tevens toegang tot de verlengde garage, die beschikt over zowel een kantel- als een loopdeur.
De woonkamer is ruim en licht, mede dankzij de tuingerichte uitbouw met openslaande deuren naar de zonnige achtertuin. In de zomer vormt de tuin een prachtige verlenging van de leefruimte, waarbij het elektrische zonnescherm zorgt voor de nodige verkoeling. De open keuken aan de voorzijde van de woning is in 2014 vernieuwd en beschikt over diverse inbouwapparatuur.
1e Verdieping:
Op de eerste verdieping bevinden zich drie slaapkamers en de badkamer. Aan de voorzijde is de ouderslaapkamer gelegen, voorzien van een dakkapel die zorgt voor extra ruimte en licht. Daarnaast is er nog een ruime slaapkamer aan de voorzijde en een derde slaapkamer aan de achterzijde, die dankzij het dakraam ook prettig licht is. De badkamer is functioneel ingericht met een douchecabine, wastafelmeubel en eveneens een dakraam voor natuurlijke ventilatie.
Via een vaste trap is de tweede verdieping bereikbaar. Hier bevindt zich een ruime zolder met dakraam, die uitstekend dienst kan doen als vierde slaapkamer, werk- of hobbyruimte. Daarnaast is er volop bergruimte en is hier de cv-installatie (HR combiketel uit 2024) te vinden. Ook is de meterkast uitgebreid ten behoeve van de zonnepanelen en moderne elektrische voorzieningen.
De achtertuin is fraai aangelegd en vergt weinig onderhoud. Dankzij de ligging op het zuidwesten geniet je hier vrijwel de hele dag van de zon. In de directe omgeving zijn meerdere speelveldjes te vinden, wat deze woning zeer aantrekkelijk maakt voor gezinnen met kinderen.
Deze woning biedt alles wat je zoekt: ruimte, comfort, energiezuinigheid en een fijne ligging. Dankzij de uitbouw, de moderne keuken, het recente schilderwerk, de 12 zonnepanelen, kunststof afwerking en de instapklare staat is dit een ideale gezinswoning waar je zó in kunt trekken. Kom snel kijken en laat je verrassen door de ruimte en sfeer die deze woning te bieden heeft. Kijk voor meer informatie op de unieke woningwebsite stal211.nl
Bijzonderheden:
– Energielabel A;
– Perceeloppervlakte 233 m2;
– Bouwjaar woning 1989;
– H.R. Combiketel uit 2024.











































