Omschrijving
Woning verkocht: Sint Jacobsstraat 23 in Leeuwarden
Exclusieve bovenwoning in de binnenstad.
Op een schitterende locatie, op slechts 100 meter van de levendige Nieuwestad en Wirdumerdijk, bevindt zich deze prachtige bovenwoning aan de Sint Jacobsstraat 23. Recent volledig verbouwd en klaar om nieuwe eigenaren te verwelkomen, biedt dit pand een unieke combinatie van stijlvolle woonruimtes. Het is mogelijk om het gehele pand over te nemen inclusief de winkel.
Woonruimte:
Comfort en Luxe over drie verdiepingen. De woonruimte, verdeeld over drie verdiepingen, biedt een prachtig thuis met alle moderne comfort.
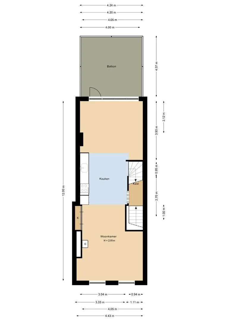
Eerste verdieping:
Een sfeervolle woonkamer met klassieke tegelwand en palletkachel, welke in verbinding staat met de open keuken, welke het hart vormt van deze verdieping. Via de keuken heeft u toegang tot het zonnige dakterras, een heerlijke plek om te ontspannen.
Tweede verdieping:
Via een vaste trap bereikt u de tweede verdieping, waar twee ruime slaapvertrekken op u wachten. Ook bevindt zich hier een luxe afgewerkte badkamer, voorzien van een inloopdouche, toilet en wastafel.
Derde verdieping:
Op de bovenste verdieping zijn nog eens twee sfeervolle slaapkamers te vinden, bereikbaar via een vaste trap en met een overloop die rust en ruimte biedt.
Bijzonderheden:
– Eigen ingang aan voorzijde.
– 10 zonnepanelen aanwezig.
– Het pand heeft een gemengde bestemming, wat betekent dat het zowel voor wonen als werken gebruikt kan worden.
– De verbinding tussen de winkel en het woongedeelte maakt dit object uitermate geschikt voor wie werk en privé op een unieke manier wil combineren.
– Gelegen in een gebied met beschermd stadsgezicht, wat de historische waarde en charme van het pand onderstreept.
Samenvattend: De Sint Jacobsstraat 23a biedt een zeldzame kans voor ondernemers en liefhebbers van stadsleven om te wonen én te werken op een toplocatie in Leeuwarden. Het pand wordt opgeleverd in de huidige, hoogwaardige staat.
Aarzel niet om een bezichtiging te plannen en laat u verrassen door de mogelijkheden en grandeur van dit prachtige pand.
Uw adviseur: Tycho Reimers





















































