Omschrijving
Woning onder bod: Pompeblêdstrjitte 7 in Stiens
Aan de rustige, kindvriendelijke Pompeblêdstrjitte vind je deze degelijke en royale twee-onder-een-kapwoning uit 1970 met vijf slaapkamers, een garage en een tuin op het zuiden. Door de vele ruimte is dit een perfecte gezinswoning met volop mogelijkheden. Ook aan buitenruimte geen gebrek. In de veelzijdige tuin kun je tot laat in de middag van de zon genieten. Bovendien ligt het prachtige Waling Dijkstra park om de hoek.
We nemen je graag mee door deze woning:
Begane grond
Via de ruime hal met meterkast aan de rechterzijde loop je langs het toilet, de trapopgang en een praktische opbergkast/kelder. Links ligt de lichte en tuingerichte woonkamer met grote ramen en de eetkamer aan de achterzijde. Openslaande deuren leiden naar de tuin met terras met elektrisch zonnescherm. Rechtdoor vind je de keuken met inbouwapparatuur, klaar om naar eigen wens te moderniseren. Achter de keuken bevindt zich de bijkeuken met cv-ketel en toegang tot de garage en de achtertuin.
Eerste verdieping
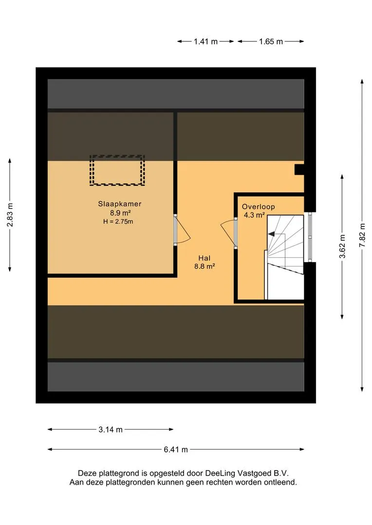
De overloop verbindt vier slaapkamers aan de voor- en achterzijde, met centraal de badkamer. Deze beschikt over een douche, ligbad, toilet en wastafel.
Tweede verdieping
Met de vaste trap bereik je een vijfde slaapkamer met dakraam en extra opbergruimte met knieschotten. Ideaal als logeerkamer, werkplek of hobbyruimte.
Buitenruimte en garage
Een bloeiende voortuin en een brede oprit leiden naar de garage met elektrische deur. De royale achtertuin bereik je via de achterom. Deze bevindt zich op het zuiden waardoor je gedurende de dag kunt genieten van de zon. Hier vind je de perfecte mix van groen en bestrating, met zowel zonnige als schaduwrijke plekjes verspreid over meerdere gezellige terrassen.
Bijzonderheden:
– Woonoppervlakte: 135 m²
– Perceeloppervlakte: 339 m²
– Ruime kavel op een fijne locatie
– 5 slaapkamers
– Eigen oprit met garage
Stiens telt ongeveer 8000 inwoners en ligt in de gemeente Leeuwarden aan de provinciale weg de N357 ten noorden van de stad Leeuwarden. Het dorp heeft een hoog voorzieningen niveau met o.a. een diversiteit aan winkels, supermarkten, een keurslager, bakker, vier basisscholen, Sportcentrum ‘It Gryn’ (binnenzwembad, buitenzwembad en sporthallen) sportvelden, tennis- en padelbanen, cultureel centrum “De Nije Skalm”, kinderboerderij Doniastate. De bevolkingsopbouw is mooi divers, van jongvolwassenen tot gezinnen en ouderen. Het dorp ligt op fietsafstand van Leeuwarden en er zijn zeer goede busverbindingen met de stad.
Geïnspireerd door een huis vol mogelijkheden en klaar om jouw stempel te drukken? Maak een afspraak en ontdek hoe je van dit prachtige huis, jouw eigen fijne thuis kunt maken!
















































