Omschrijving
Woning beschikbaar: Oostergrachtswal 9 – A in Leeuwarden
Wat een kans! Wonen aan het water met een adembenemend uitzicht én op loopafstand van het centrum van Leeuwarden.
Aan de geliefde Oostergrachtswal staat deze schitterend gerenoveerde maisonnette, verdeeld over de eerste en tweede verdieping. Hier geniet je iedere dag van een fenomenaal uitzicht over de stadsgracht, waar de pleziervaart rustig voorbijglijdt en de skyline van Leeuwarden het decor vormt van jouw woonbeleving.
Het complete pand is in 2022 volledig gerenoveerd en geïsoleerd. Alles is strak afgewerkt met glad gestucte wanden en moderne laminaatvloeren. Je hoeft hier alleen nog maar je meubels neer te zetten en te genieten.
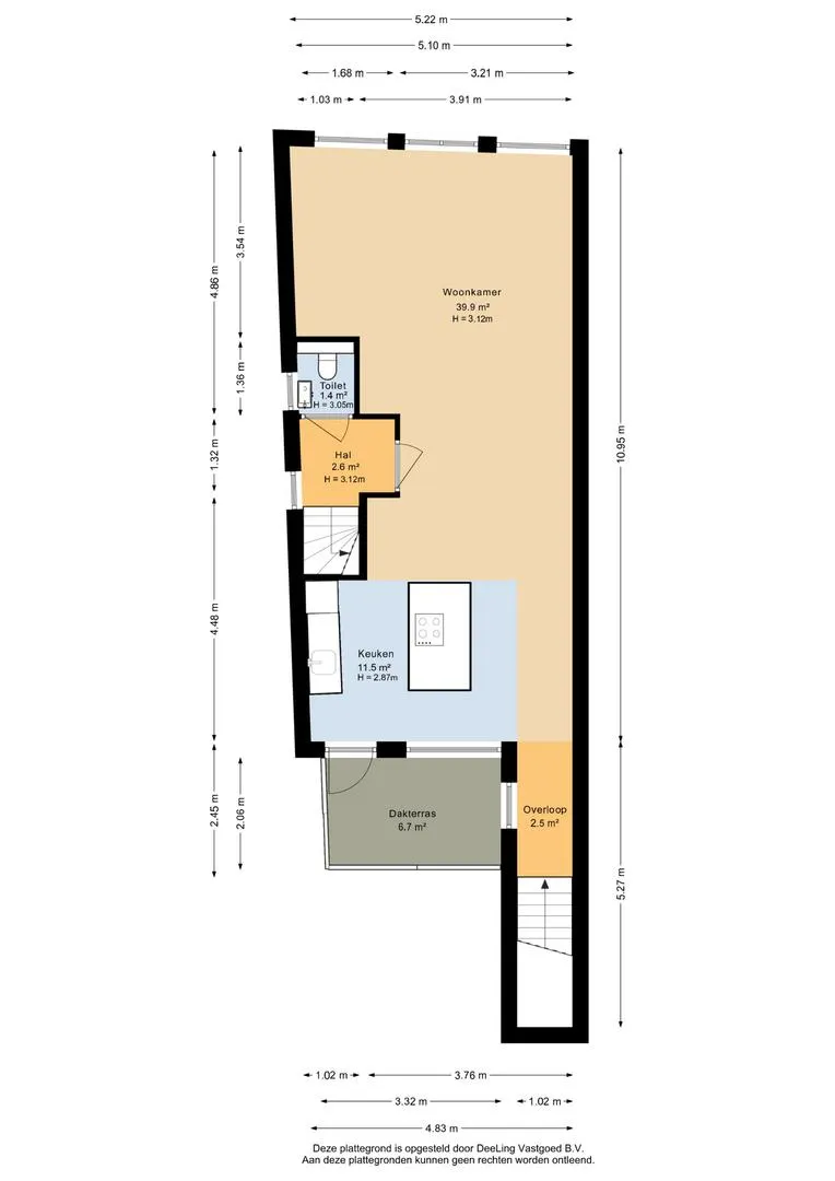
Eerste verdieping
Via de entree loop je via de trapopgang naar boven. De woonkamer aan de voorzijde is heerlijk licht en biedt een panoramisch uitzicht over het water. Dit is een plek waar je elk seizoen opnieuw van blijft genieten.
De keuken uit 2022 is een echte blikvanger. Strak vormgegeven en voorzien van een kookeiland met inductiekookplaat, oven, vaatwasser en diverse inbouwapparatuur. Een perfecte plek om uitgebreid te koken en gezellig samen te zijn.
Aan de achterzijde stap je bovendien zo het fijne dakterras op. Een heerlijke buitenruimte waar je in alle rust kunt ontspannen, borrelen of genieten van de zon.
Tweede verdieping
Via de hal met modern toilet en trapopgang naar boven kom je op de tweede verdieping. Op deze verdieping bevinden zich twee ruime slaapkamers en een moderne badkamer. De slaapkamer aan de voorzijde biedt opnieuw dat spectaculaire uitzicht over de gracht en de stad. Wakker worden met dit uitzicht is elke dag een cadeautje.
De badkamer is strak en eigentijds uitgevoerd met een douche, wastafelmeubel en tweede toilet. Ook de aansluiting voor de wasmachine is hier netjes weggewerkt.
Begane grond
Beneden beschik je over een praktische fietsenberging, ideaal voor wie graag de stad in fietst.
Parkeren
Parkeren kan direct voor de woning of aan de achterzijde op de nabijgelegen parkeerplaats.
Kenmerken:
– Appartement is volledig vernieuwd en opgeleverd in 2022
– Woonoppervlakte maar liefst 106m²
– Energielabel B
– Eigen dakterras
– Eigen berging
Kortom: een instapklare, modern afgewerkte maisonnette op een toplocatie aan het water, met twee ruime slaapkamers, een heerlijk dakterras en een uitzicht dat werkelijk uniek is voor Leeuwarden.
Zie jij jezelf hier al wonen? Maak snel een afspraak voor een bezichtiging en ervaar het zelf.
















































