Omschrijving
Woning verhuurd: Naauw 8 – A in Leeuwarden
In een prachtig monumentaal pand op toplocatie in de binnenstad van Leeuwarden zijn 6 nieuwe appartementen gerealiseerd, allemaal uniek.
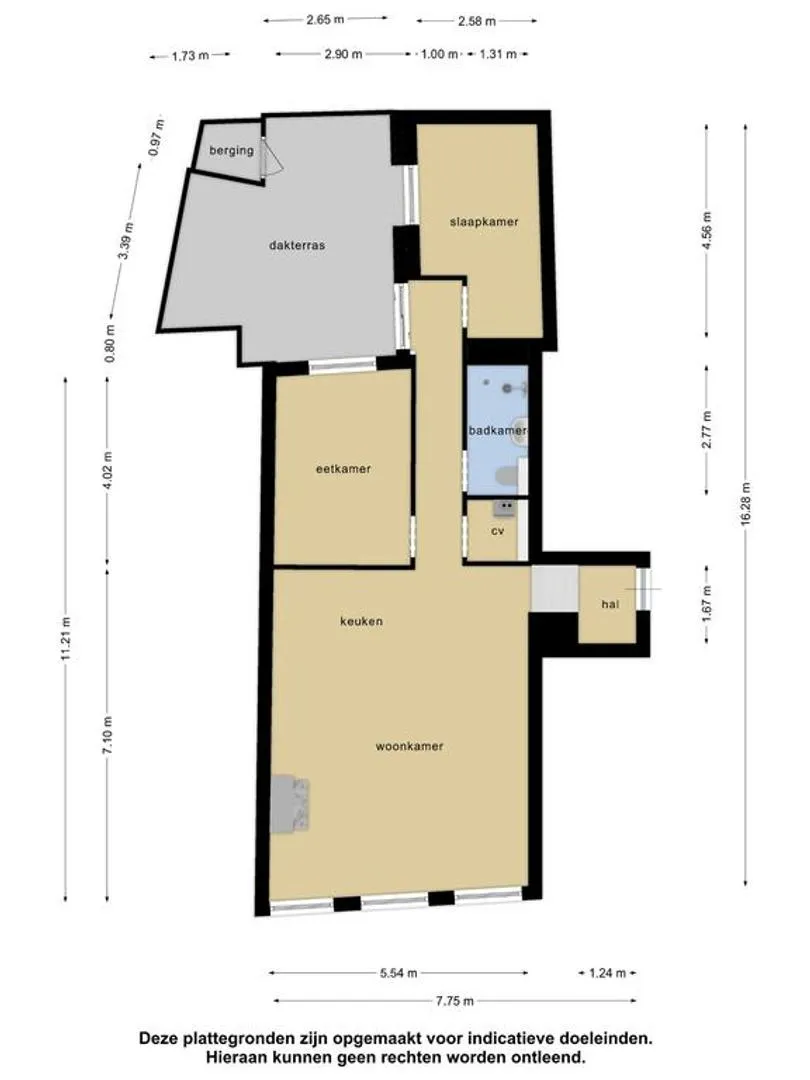
Dit gasloze appartement heeft een prachtige woonkamer met uitzicht over het Naauw en mooie authentieke elementen. Daarnaast is er een eetkamer/kantoor/slaapkamer en een slaapkamer aan de achterzijde. Ook is er een dakterras aan de achterzijde.
In het gebouw is een fietsenberging aanwezig.

































