Omschrijving
Woning verkocht: Mr. P.j. Troelstraweg 110 in Leeuwarden
Heerlijk gezinshuis met een fantastische tuin!
In dit verrassend ruime en comfortabele woonhuis, dat bovendien zeer goed is onderhouden, vind je ontzettend veel praktische woonruimte. Zo is dit in 2019 op de begane grond uitgebreid met een uitbouw, die niet alleen veel extra woonruimte in de living en een moderne keuken oplevert, maar ook een mooie lichtinval heeft door de toepassing van schuifpui, openslaande tuindeuren én daklicht. En wat ook zo fijn is; de gehele begane grondvloer is voorzien van een Senzo gietvloer met vloerverwarming; heel praktisch en lekker behaaglijk!
Boven bevinden zich in totaal maar liefst 5 (slaap)kamers, twee badkamers, een ruim dakterras, een kunststof dakkapel aan de achterzijde en een vernuftig balkonvenster op de tweede etage. Beide etages baden hierdoor in een zee van licht. Tenslotte heeft de woning nog een handige bergvliering, per vlizotrap te bereiken.
Achter het huis wacht nóg een grote verrassing: in de diepe, onder architectuur aangelegde achtertuin met prachtige beplanting en diverse terrassen is op elk moment van de dag een plekje te vinden om te genieten en/of lekker te spelen in zowel zon als schaduw. Hier waan je je midden in de natuur!
Kortom: een prachtig huis met een fantástische tuin op een mooie plek in de stad: een combinatie waar ons makelaarshart zeker sneller van gaat kloppen!
De statige Mr.P.J. Troelstraweg loopt vanuit het gewilde westen van de stad richting het centrum van Leeuwarden. De straat heeft aan beide zijden een brede ventweg/fietsstrook, waar tevens de auto geparkeerd kan worden. Vanaf hier ben je zeer snel zowel de stad in als uit. De gezellige binnenstad, met een gevarieerd winkelbestand, veel leuke restaurants, terrasjes, bioscopen en Stadsschouwburg ligt op amper 10 minuten fietsen. Supermarkten, kinderopvang en diverse zorg-, onderwijs- en sportvoorzieningen bevinden zich in de directe nabijheid evenals het zwembad en de kinderboerderij.
De indeling
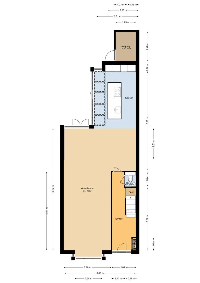
Begane grond
– entree, hal, trapopgang, toilet met fonteintje, provisiekelder, moderne zwart-glazen deur naar de:
– royale lichte living met erker aan de voorzijde en aan de achterzijde een dubbele uitbouw met grote raampartij
– moderne keuken met kook- en spoeleiland, composiet werkblad, quooker, inductiekookplaat, oven, afzuiger, vaatwasser, koel-vriescombinatie en inbouw-wasmachine
– schuifpui en openslaande deuren die toegang geven tot de:
– zeer diepe, fraai aangelegde tuin met stenen (fietsen)berging en achterom.
Eerste etage
– overloop
– eerste slaapkamer aan de achterzijde, toegang tot het dakterras/droogplat
– tweede (slaap)kamer aan de voorzijde
– derde slaapkamer aan de voorzijde met balkon en openslaande deuren
– badkamer met douche, wastafel en 2e toilet, toegang tot dakterras/droogplat.
Vaste trap naar de tweede etage
– lichte overloop
– vierde slaapkamer aan de achterzijde
– vijfde slaapkamer aan de voorzijde v.v. dubbel dakvenster en balkonvenster
– tweede (gasten)badkamer v.v. douchehoek, wastafelmeubel en 3e toilet.
De vlizotrap op de overloop geeft toegang naar de bergvliering.
Nog even in het kort
– compleet, comfortabel en royaal woonhuis
– op zeer goede woonstand gelegen
– aan laan met ventweg/fietspad en trottoir
– zeer goed onderhouden
– boven v.v. kunststof buitenkozijnen
– kunststof dakkapel over de gehele breedte van de woning (tweede etage)
– Nefit CV ketel (2021)
– nieuwe groepenkast
– voorzien van 14 zonnepanelen
– v.v. vloerisolatie en -verwarming
– v.v. isolerende beglazing (m.u.v. 1 steekraampje)
– droogplat v.v. vlonders
– badkamer tweede etage aangelegd in 2021
– buitenschilderwerk uitgevoerd in 2020/2021
– tuin in 2020 onder architectuur van Siem de Vlas aangelegd
– tuin voorzien van diverse stroompunten, buitenkraan
– aanvaarding in overleg.






























































