Omschrijving
Woning onder bod: Mozartstraat 95 in Leeuwarden
Mozartstraat 95, charmante jaren ’30 tussenwoning met vier slaapkamers en zonnige tuin
Wil je wonen in een sfeervolle jaren ’30 woning in één van de meest geliefde wijken van Leeuwarden? Dan is Mozartstraat 95 een woning die je gezien moet hebben. Deze verzorgde tussenwoning combineert karakter met comfort, beschikt over ca. 115 m² woonoppervlakte, vier slaapkamers, een ruime tuin op het zuiden met achterom en is voorzien van recente verbeteringen zoals een nieuw pannendak en schilderwerk uit 2024. Een prachtige woning waar je direct van kunt genieten!
Indeling van de woning
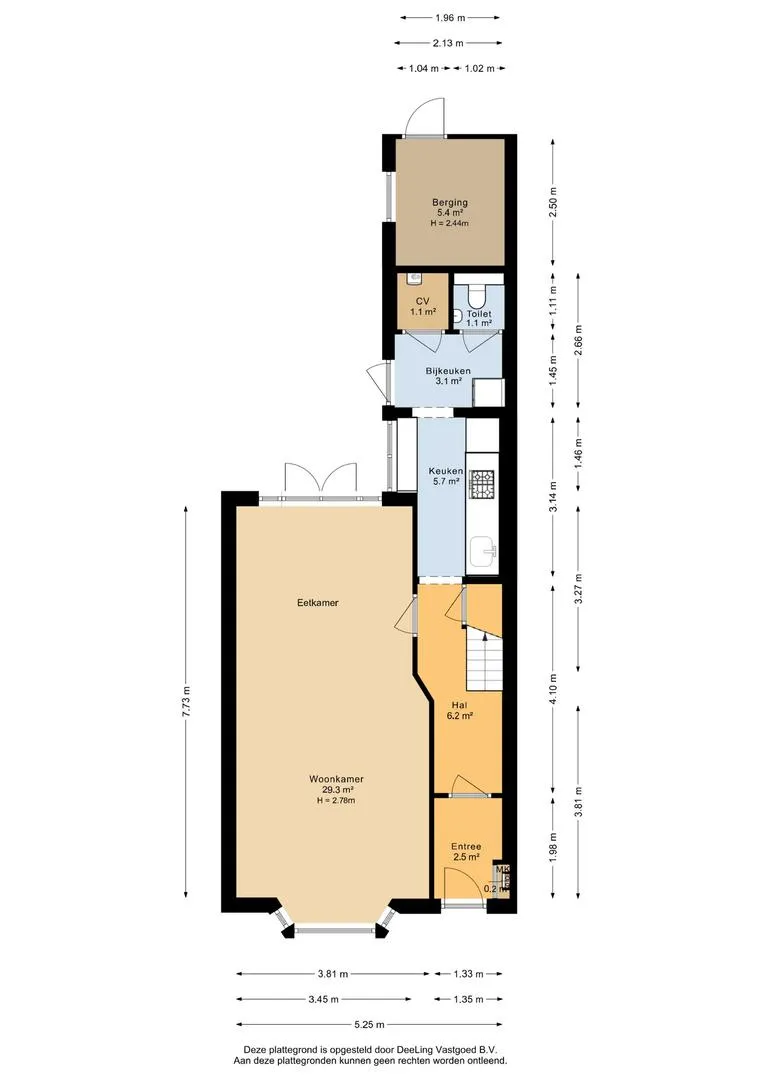
Begane grond
De authentieke voordeur met glas-in-lood nodigt je direct uit om binnen te stappen. Het tochtportaal geeft toegang tot de garderobe, de meterkast en een handige trapkast. Vanuit hier betreed je de ruime woonkamer. Dankzij de grote raampartijen en de karakteristieke erker aan de voorzijde is dit een lichte, prettige ruimte. De openslaande deuren naar de achtertuin maken het plaatje helemaal af
Aan de achterzijde bevindt zich de keuken. Deze is compleet uitgerust met oa een gasfornuis, vaatwasser, koel-vriescombinatie en voldoende kastruimte. Aansluitend ligt de bijkeuken, waar ook plek is voor het eerste toilet. Via de bijkeuken loop je direct de zonnige tuin in.
Tuin
De achtertuin is een groot pluspunt van deze woning. Gelegen op het zuiden, met veel privacy en onderhoudsarm. De tuin biedt ruimte voor een gezellige loungehoek, een eettafel of speelruimte voor kinderen. Bovendien is er een bergingsruimte en een afgesloten achterom, ideaal voor fietsen of tuinspullen.
Eerste verdieping
Op de eerste verdieping vind je twee ruime slaapkamers, waarvan één momenteel als werkkamer in gebruik is. Alle kamers hebben grote ramen waardoor de ruimtes licht en luchtig aanvoelen. De badkamer is compleet en praktisch ingericht met een ligbad, douche, wastafel én tweede toilet, waardoor je alles op één verdieping hebt.
Tweede verdieping
Via een vaste trap bereik je de tweede verdieping, die voorzien is van een grote dakkapel. Mede hierdoor zijn er nog twee slaapkamers op deze verdieping. De ruimte biedt bovendien mogelijkheden voor diverse indelingen, waardoor je eenvoudig extra wooncomfort creëert.
Locatie
Mozartstraat 95 ligt in de rustige, groene en gewilde Componistenbuurt, één van de oudste en meest geliefde wijken van Leeuwarden. Het historische centrum ligt op loop- en fietsafstand, en in de buurt zijn twee buurtwinkelcentra met onder andere een supermarkt, bakker en snackbar. Voor kinderen zijn er diverse basisscholen en kinderopvangmogelijkheden. Sportliefhebbers kunnen terecht bij de nabije sportverenigingen.
Daarnaast is de ligging gunstig ten opzichte van de Haak om Leeuwarden, waardoor je snel op de N31, A31 of A32 bent. Zo combineer je het beste van rustig wonen met uitstekende bereikbaarheid.
Bijzonderheden van Mozartstraat 95
Woonoppervlakte ca. 115 m²
Vier slaapkamers
Ruime achtertuin op het zuiden met achterom
Recent nieuw pannendak
Schilderwerk uitgevoerd in 2024
Authentieke jaren ’30 details zoals glas-in-lood en erker
Praktische bijkeuken en berging
Rustige, gewilde en centrale locatie in de Componistenbuurt





















































