Omschrijving
Woning beschikbaar: Mesdagstraat 40 in Leeuwarden
Droom je van een sfeervolle jaren ’30 woning waar authentiek karakter en moderne afwerking samenkomen? Deze woning is gelegen in de gewilde woonwijk Huizum in Leeuwarden en biedt een sfeervolle leefomgeving waar authentieke details en modern wooncomfort hand in hand gaan. Met een erker aan de voorzijde, dubbele tuindeuren naar een zonnig terras en drie slaapkamers is dit een woning met volop mogelijkheden voor comfortabel en gezellig wonen.
Huizum is een gewilde en rustige woonwijk in Leeuwarden, bekend om zijn charmante straten, groene omgeving en een prettige mix van jaren ’30 woningen. In de wijk vind je diverse scholen, winkels, sportfaciliteiten en gezellige horecagelegenheden, terwijl het station en het centrum van Leeuwarden eenvoudig te bereiken zijn.
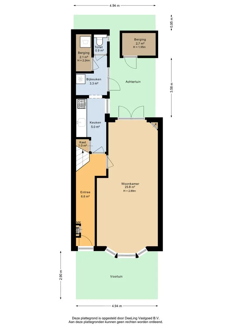
Begane grond
Via de entree kom je in de hal met meterkast, trapopgang en doorgang naar de ruime woonkamer. De woonkamer ademt direct sfeer dankzij het klassieke jaren-dertig karakter. Het balkenplafond, de houten vloer en het erkerkozijn aan de voorzijde geven een warme en authentieke uitstraling terwijl de schouw een fraai middelpunt van de ruimte is. Aan de achterzijde is er plek voor een gezellige eet- en zithoek en geven de dubbele tuindeuren een mooie verbinding met het terras en zorgen ze voor veel lichtinval. Met een oppervlakte van ca. 26 m² en een plafondhoogte van bijna 2,90 meter voelt de woonkamer heerlijk ruim aan.
De keuken (2013) is modern uitgevoerd in rechte opstelling met een frisse, neutrale uitstraling. Achter het werkblad zijn mooie wandtegels aangebracht die een stijlvolle touch geven en het koken nog plezieriger maken. De keuken is voorzien van inbouwapparatuur en heeft voldoende kastruimte. Aan de achterzijde bevindt zich de bijkeuken, berging met wasruimte en net toilet. Vanuit de bijkeuken stap je zo de stadstuin op het westen in. De tuin is onderhoudsvriendelijk aangelegd en is een fijne plek om buiten van de zon te genieten. De berging is te bereiken via de achterom.
Eerste verdieping
De overloop geeft toegang tot drie slaapkamers en de badkamer. De grootste slaapkamer van circa 10 m² beschikt over een vaste kast. De badkamer is netjes uitgevoerd en voorzien van toilet, wastafel en douche met ingebouwde bluetooth speaker. Aan de achterzijde bevindt zich het dakterras/droogplat. Via een vlizotrap is de vliering vanaf de overloop bereikbaar, ideaal voor het opbergen van seizoenspullen.
Bijzonderheden:
– Energielabel F
– Cv-ketel: Intergas (2021)
– Sfeervolle jaren ’30 details waaronder balkenplafond en erker
– 3 slaapkamers
– Vliering voor extra bergruimte
– Gelegen nabij voorzieningen, station en centrum
– Parkeervergunning mogelijk
Een karaktervolle woning met een warme uitstraling én hedendaags comfort. Maak snel een afspraak voor een bezichtiging en ervaar zelf de sfeer van deze fijne woning!



















































