Omschrijving
Woning verkocht: Mendelssohnstraat 23 in Leeuwarden
In één van de gezelligste straten van de Componistenbuurt in het westen van de stad, vind je deze mooie jaren ’30 woning. De klassieke erker, de grote raampartijen en de smaakvolle inrichting zorgen voor een bijzonder sfeervol plaatje. De zeer goed onderhouden woning heeft drie slaapkamers en een strakke badkamer op de eerste verdieping en een maar liefst 15-meter diepe tuin met achterom op het zuidwesten. Mede door de moderne tijdloze keuken en badkamer, het recente schilderwerk en de HR++ beglazing is dit fijne huis met recht instapklaar te noemen. Pak de verhuisdozen maar in, je kunt er zo in!
We nemen je mee naar binnen.
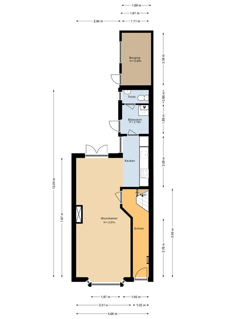
Je komt aanrijden in autoluwe en kindvriendelijke straat en je parkeert de auto voor de deur. De entree zet de toon voor wat je in de rest van de woning kan verwachten. Je wordt begroet door een mooie ruime hal met een strakke houten vloer. Je vindt hier ook de garderobe, de meterkast en de trapopgang naar de eerste verdieping. Daarnaast is er toegang tot een handige trapkast. Dan de woonkamer, een heerlijke lichte ruimte. Door de vele raampartijen heeft de woonkamer een hele mooie lichtinval. De klassieke erker zorgt voor die typische jaren ’30 sfeer. Het strakke stucwerk, het balkenplafond, de mooie houten vloer en de openslaande deuren aan de achterzijde maken het plaatje af. Het eetgedeelte staat in directe verbinding met de strakke open keuken. Deze in 2019 geplaatste keuken is voorzien van inbouwapparatuur zoals een vaatwasser, oven, inductiekookplaat en koelkast. De bijkeuken sluit aan op de keuken en hier is ruimte voor het witgoed en de cv-installatie. Achter de bijkeuken bevindt zich het toilet.
Via de openslaande deuren loop je zo de achtertuin in. Een heerlijke plek om de zomeravonden door te brengen. De 15-meter diepe achtertuin is verzorgd, onderhoudsarm en geeft veel privacy. Door de gunstige ligging op het zuidwesten is er altijd wel een plekje in de zon of in de schaduw te vinden. Er is een berging en via de schuttingdeur een handige achterom.
Terug naar de hal. Via de vaste trap kom je op de ruime overloop van de eerste verdieping. Doordat er zowel aan de voorzijde als aan de achterzijde van de woning een dakkapel aanwezig is, is er verrassend veel ruimte op de eerste verdieping. Vanuit de overloop heb je toegang tot drie slaapkamers die zijn voorzien van mooie raampartijen waardoor ook hier een mooie lichtinval is. De master bedroom aan de achterzijde is ruim te noemen. De kleine slaapkamer aan de voorzijde is nu in gebruik als werkkamer maar kan uiteraard ook als slaapkamer gebruikt worden. De centraal gelegen badkamer is in 2019 geplaatst en volledig betegeld. Je vindt hier een inloopdouche en een wastafelmeubel.
Via een vlizotrap komen we op de vliering. Er is hier een nieuw dakraam voor natuurlijk licht. De ruimte leent zich perfect voor opslag van al je seizoensgebonden spulletjes.
De Mendelssohnstraat is gelegen in de karakteristieke Componistenbuurt, één van de oudste en meest gewilde wijken van Leeuwarden. Gelegen op loop- en fietsafstand van het historische centrum van Leeuwarden. Vlakbij de woning zijn twee buurtwinkelcentra aanwezig met o.a. een supermarkt, slijterij, warme bakker, snackbar en drogist. Ook zijn er voorzieningen zoals sportverenigingen, basisscholen en kinderopvang in de directe omgeving. De wijk ligt zeer gunstig ten opzichte van de haak om Leeuwarden. Binnen enkele minuten bereik je diverse uitvalswegen zoals de N31, A31 en A32.
Klinkt wonen in de Componistenbuurt jou ook als muziek in de oren? Maak dan snel een afspraak voor een bezichtiging!
Bijzonderheden:
– Instapklare woning met verrassend veel ruimte
– Keurige, onderhoudsarme tuin op het zuidwesten
– Zeer goed onderhouden
– Grotendeels HR++ beglazing (2023)
– Vloerisolatie (2023)
– Tijdloze keuken met inbouwapparatuur (2019)
– Strakke badkamer op de eerste verdieping (2019)
– Schilderwerk buitenom 2023
– Bitumen op beide dakkapellen vernieuwd (2025)
– Lood en voegen vernieuwd op schoorsteen (2025)
– Nieuwe elektra met 3 fasen









































