Omschrijving
Woning verkocht: Koekoekstraat 6 in Leeuwarden
Koekoek! Wat een heerlijk huis is dit!
Aan de rand van de Vogelwijk in het westen van de stad, vind je deze prachtige, ruime jaren ’30 woning. De klassieke erker, het glas in lood en de smaakvolle moderne inrichting zorgen voor een bijzonder sfeervol plaatje. Deze royale, zeer goed onderhouden woning met energielabel C heeft een mooie beschutte achtertuin met achterom, vijf slaapkamers, twee badkamers en maar liefst 138m² woonoppervlakte.
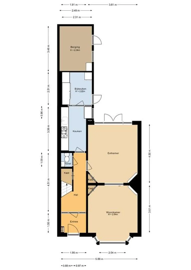
We nemen je mee naar binnen. De entree zet de toon voor wat je in de rest van de woning kan verwachten. Je wordt begroet door een mooie ruime hal met een schitterende glas in lood details. Je vindt hier ook de garderobe, meterkast en het eerste toilet. Verder is er toegang tot de kelder. Dan de woonkamer, een heerlijke lichte ruimte. Door de vele raampartijen heeft de woonkamer een hele mooie lichtinval. De klassieke erker met glas in lood raampjes zorgt voor die typische jaren ’30 sfeer. De en suite deuren, de houten vloer en de openslaande deuren naar de tuin maken het plaatje af. De lichte tijdloze keuken is voorzien van inbouwapparatuur zoals een vaatwasser, oven, koel-vriescombinatie en kookplaat. De bijkeuken is bereikbaar vanuit de keuken, is goed geïsoleerd en biedt plaats aan het witgoed. De achtertuin ligt op het oosten, is onderhoudsarm en geeft veel privacy. Er zijn hier meerdere zitjes waar je heerlijk van de zon kan genieten. Verder is er een handige achterom en een ruime fietsenberging aanwezig.
Terug naar de hal. Via de vaste trap kom je op de ruime overloop van de eerste verdieping. Vanuit de overloop heb je toegang tot drie slaapkamers met inbouwkasten. Alle kamers zijn voorzien van mooie raampartijen waardoor ook hier een mooie lichtinval is. De master bedroom ligt aan de voorzijde en is door de erker en het balkenplafond een bijzonder sfeervolle kamer. Daarnaast vind je de eerste badkamer op de eerste verdieping. Deze badkamer is voorzien van een inloopdouche, wastafel en een tweede toilet. Vanuit de badkamer heb je toegang tot het droogplat.
Tweede verdieping
Via eveneens een vaste trap komen we op de tweede verdieping. Hier vind je nog twee slaapkamers en de tweede badkamer. Door de hoogte van het huis zijn deze kamers verrassend groot. De badkamer heeft een ligbad met douche en een wastafel. Achter de knieschotten is veel ruimte voor het opbergen van seizoensgebonden spullen en er is een aparte ruimte voor de CV-installatie. Door de vele ruimte die het huis te bieden heeft, is het zeer geschikt voor grote gezinnen en is thuiswerken ook geen enkel probleem.
De Koekoekstraat is gelegen in de karakteristieke Vogelwijk, één van de oudste en meest gewilde wijken van Leeuwarden. Gelegen op loop- en fietsafstand van het historische centrum van Leeuwarden. Schuin tegenover de woning ligt een speeltuintje en vlakbij zijn twee buurtwinkelcentra aanwezig met o.a. een supermarkt, slijterij, warme bakker, snackbar en drogist. Ook zijn er voorzieningen zoals sportverenigingen, basisscholen en kinderopvang in de directe omgeving. De Vogelwijk ligt zeer gunstig ten opzichte van de haak om Leeuwarden. Binnen enkele minuten bereik je diverse uitvalswegen zoals de N31, A31 en A32.
Bijzonderheden:
– Gerenoveerde, instapklare woning centraal in de populaire Vogelwijk
– 5 slaapkamers
– 2 badkamers
– Energielabel C
– Tijdloze keuken met inbouwapparatuur
– Prachtige zolderkamers
– Strakke onderhoudsarme tuin
– 138m² woonoppervlakte





















































