Omschrijving
Woning beschikbaar: Kingmastate 43 in Leeuwarden
Wonen in de geliefde wijk Camminghaburen, waar groen, ruimte en voorzieningen samenkomen. Deze goed onderhouden tussenwoning in Camminghaburen beschikt over circa 111 m² woonoppervlakte, vier slaapkamers en een achtertuin op het zonnige zuidoosten, grenzend aan een speelparkje aan de achterzijde. Dankzij het energielabel B is de woning bovendien prettig in gebruik. Een ideale gezinswoning op een fijne, rustige plek in Leeuwarden!
Begane grond:
Je komt binnen in de entree met toilet, meterkast en trapopgang. Vanuit hier loop je door naar het woongedeelte, dat is ingericht in een open en lichte indeling. Aan de voorzijde bevindt zich de functionele keuken voorzien van inbouwapparatuur. De keuken beschikt over een koelkast, vaatwasser, combimagnetron en inductiekookplaat. Halverwege de ruimte is plek voor een gezellig eetgedeelte, mooi verbonden met zowel de keuken als de woonkamer. Aan de tuinzijde ligt de woonkamer, afgewerkt met een laminaatvloer en ingericht als een fijne plek voor een comfortabele zithoek. Grote raampartijen en de tuindeur zorgen voor veel licht en een open blik naar de tuin. Extra praktisch is de trapkast, ideaal voor provisie of huishoudelijke spullen.
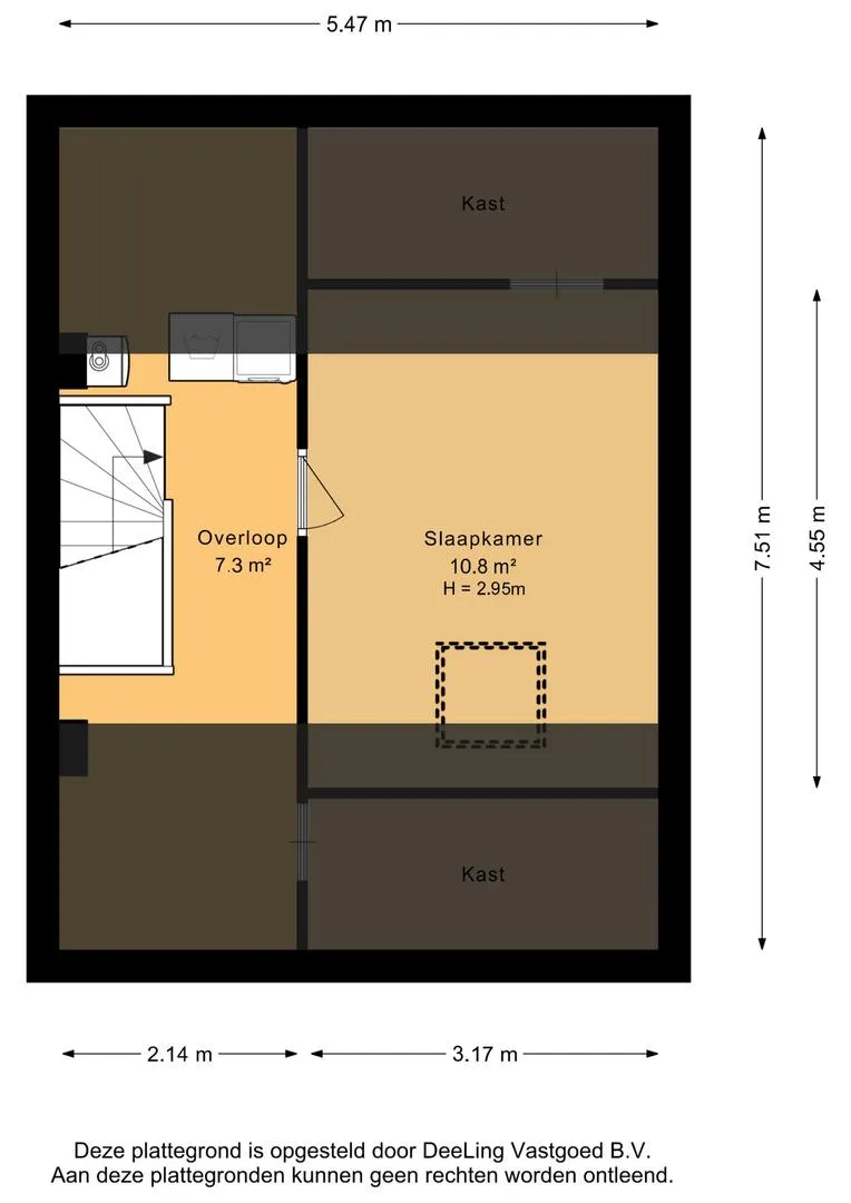
Verdiepingen:
Vanaf de overloop bereik je drie slaapkamers. Twee kamers zijn ruim van formaat en geschikt als volwaardige slaapkamers, terwijl de derde kamer perfect dienst kan doen als kinder-, werk- of logeerkamer. Aan de voorzijde ligt de badkamer, voorzien van een douche, toilet en wastafel, compact en functioneel ingericht. Via een vaste trap kom je op de tweede verdieping. Op de overloop is ruimte voor de cv-installatie en het witgoed. Aansluitend vind je de vierde slaapkamer, voorzien van een dakraam dat zorgt voor prettig daglicht. Een fijne extra kamer die zich uitstekend leent als slaapkamer, werkruimte of hobbykamer.
Buitenruimte:
De achtertuin ligt op het zonnige zuidoosten, waardoor je hier vrijwel de hele dag van de zon kunt genieten. Er is voldoende ruimte voor een comfortabele zithoek. De tuin grenst direct aan een plantsoen met speelparkje, wat zorgt voor een vrij uitzicht en een ideale plek voor kinderen om te spelen. De houten berging is handig voor fietsen, tuingereedschap of buitenspeelgoed en via de achterzijde loop je zo het parkje in.
Kenmerken
– Bouwjaar: 1982
– Woonoppervlakte circa 111 m²
– Energielabel B
– Vier slaapkamers
– Open woonindeling en 3 woonlagen
– Zonnige achtertuin op het zuidoosten
– Tuin grenzend aan plantsoen en speelparkje
– Houten berging voor fietsen en tuinspullen
– Cv-ketel Nefit (2015, eigendom)
– Rustig gelegen in de geliefde wijk Camminghaburen
Camminghaburen staat bekend om zijn prettige, kindvriendelijke karakter. Scholen, winkels, sportvoorzieningen en openbaar vervoer liggen op korte afstand, terwijl je ook zo richting het centrum of de uitvalswegen rijdt. De ligging aan de achterzijde, direct aan het groen, zorgt voor extra rust en een vrij gevoel.
Ben je op zoek naar een ruime gezinswoning op een rustige, groene plek in Leeuwarden? Maak dan snel een afspraak voor een bezichtiging en ervaar zelf het comfort, de ruimte en de fijne ligging van Kingmastate 43.







































