Omschrijving
Woning verkocht: Johan Willem Frisostraat 14 in Joure
Instapklare ruime starterswoning in Joure!
Ben je op zoek naar een fijne starterswoning in een rustige buurt in Joure? Dan is dit jouw kans! Deze woning is in 2017 grondig aangepakt en is voorzien van een ruime woonkamer, energielabel A, 4 slaapkamers en een fijne tuin met achterom. Perfect voor wie op zoek is naar comfort, ruimte en een goede basis om op voort te bouwen.
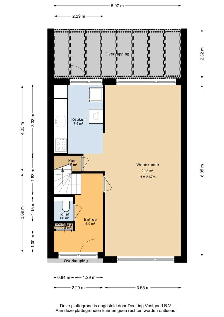
Indeling
Bij binnenkomst kom je in de hal waar je de vernieuwde meterkast vindt én is aangesloten op maar liefst 10 zonnepanelen van 400Wp – klaar voor de toekomst! Ook vind je in de hal het toilet welke is voorzien van een modern, hangend toilet.
De begane grond heeft een frisse uitstraling met een nieuwe laminaatvloer uit 2024. Aan de voorzijde zijn kunststof kozijnen geplaatst met dubbel glas voor extra comfort. Vanuit de eettafel heb je zicht op de tuin.
De woonkamer is licht en gezellig, met een handige trapkast. De keuken uit 2017 is praktisch en compleet uitgerust met een oven, vaatwasser, koel-vriescombinatie en de aansluiting voor witgoed vind je hier.
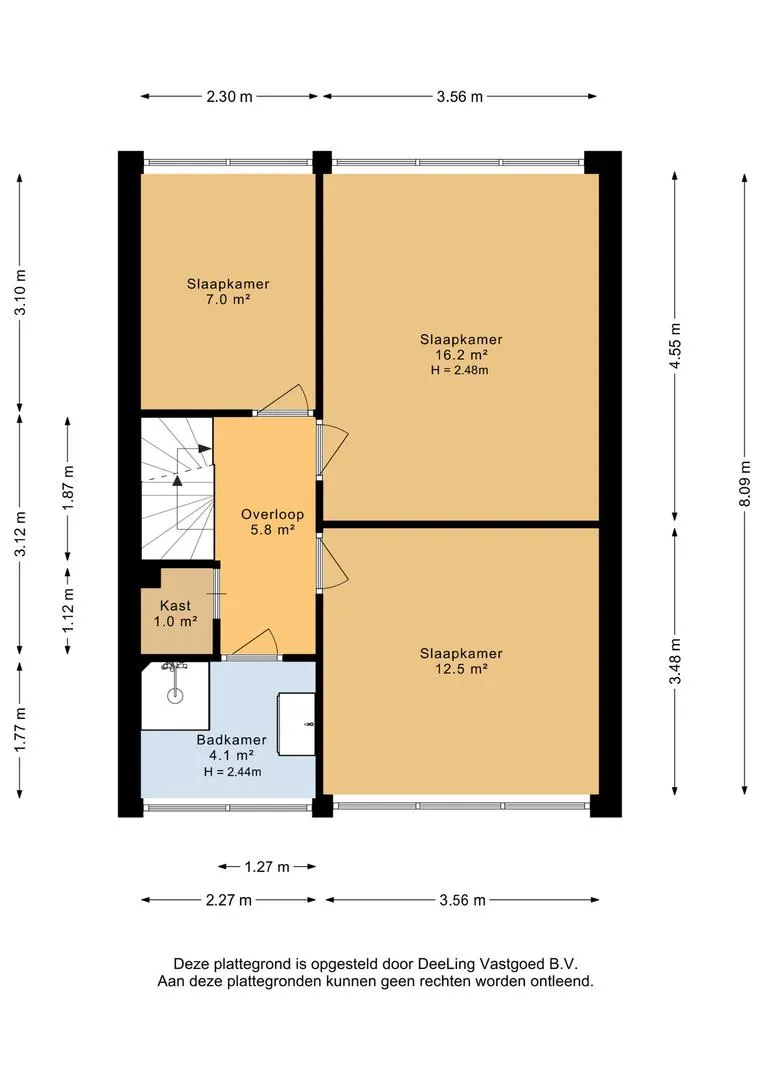
Bovenverdiepingen
Op de eerste verdieping vind je drie slaapkamers van verschillend formaat. De badkamer is modern ingericht met een inloopdouche, wastafelmeubel en natuurlijke ventilatie. Daarnaast is er een praktische vaste kast op de overloop.
Op de tweede verdieping vind je de 4e slaapkamer en het dak is geïsoleerd. Hier bevinden zich de cv-ketel en de omvormer van de zonnepanelen.
Buitenruimte
De tuin is gelegen op het noordoosten. Achterin de tuin kan je genieten van de zon en dankzij een vlonder en overkapping kun je hier ook heerlijk in de schaduw zitten op de warme dagen. De vrijstaande schuur is voorzien van een betonnen vloer en dakisolatie – perfect voor opslag of een hobbyruimte. Via de steeg achter de woning kan je ook de tuin bereiken.
Goed om te weten:
– woonoppervlakte 114 m2;
– energielabel A;
– buitenkozijnen en dakgoot in 2024 vernieuwd en geschilderd;
– 10 zonnepanelen 400 wp (2022);
Kortom: een sfeervolle woning met ruimte én comfort. Ideaal voor starters die op zoek zijn naar een fijne woning in Joure. Kom snel kijken en laat je verrassen!












































