Omschrijving
Woning verkocht: Johan De Walestraat 10 in Leeuwarden
Sfeervolle jaren ’30-stadswoning met authentieke charme en modern comfort.
Deze karaktervolle tussenwoning combineert originele details met hedendaagse luxe op een smaakvolle manier. De woning is uitstekend onderhouden, beschikt over een zonnige stadstuin op het zuiden én een dakterras.
Gelegen in een geliefde jaren ’30-wijk, nabij het Dr. Zamenhofpark, biedt deze woning vrij uitzicht over een groen plantsoen. Scholen, winkels en voorzieningen zijn op korte afstand bereikbaar.
In de afgelopen jaren is het huis grondig en vakkundig gemoderniseerd, met behoud van sfeervolle elementen zoals glas-in-loodramen en paneeldeuren. De moderne keuken en recent vernieuwde luxe badkamer maken het plaatje compleet.
Indeling
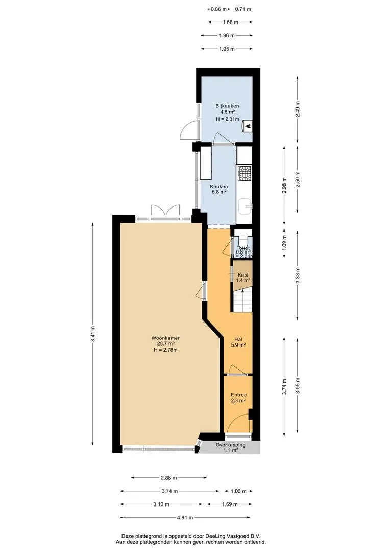
Begane grond:
entree met tochtportaal, ruime en lichte hal met fraaie trappartij (matzwart), toiletruimte, aanbouw met keukenopstelling (modern en v.v. granieten werkblad en apparatuur als koelkast, vaatwasser, Quooker, gaskookplaat, wasemkap en combi-oven) en bijkeuken met ruime witgoedhoek en CV-opstelling, lichte woonkamer met erker en terrasdeuren naar de fraaie tuin met overkapping en achterom. De woonkamer is voorzien van een eikenhoutenvloer en aan de voorzijde geeft de erker een mooie blik op het voorgelegen plantsoen.
Eerste verdieping:
overloop met originele vaste kasten en deur naar dakterras/droogplat, zeer fraaie badkamer met inloopdouche, 2e hangtoilet en dubbel wastafelmeubel en een tweetal ruime slaapkamers (circa 10 m² en 13 m²). Door de hoge gootlijn is de verdieping zeer doelmatig en beschikt men over veel woonoppervlakte.
Tweede verdieping:
via de vaste trap bereikbare 2e verdieping voorzien van originele plankenvloeren en fraai stucwerk, ruime overloop annex werkruimte met Velux-dakraam, bergruimte en een 3e slaapkamer (circa 11 m²) met Velux-dakraam. De realisatie van een grotere of een extra slaapkamer is mogelijk gezien de ruimte op de verdieping.
Deze prachtwoning gelegen ten oosten van de historische binnenstad met al haar voorzieningen op het gebied van winkels, horeca en cultuur. Ook de parkachtige omgeving van het Dr. Zamenhofpark is op korte afstand gelegen. De bereikbaarheid per auto is uitstekend, dankzij de gunstige ligging nabij de oostelijke ringweg.
Bijzonderheden:
– energielabel C
– woonoppervlakte 111 m²
– CV via Intergas HRE-combiketel 2018
– inclusief waterontharder
– voorzien van vloerisolatie, dakisolatie en isolerende beglazingen
– platte dak aanbouw in 2019 vervangen
– authentieke muurtje voortuin in 2019 opnieuw opgemetseld











































