Omschrijving
Woning verkocht: Jan Luykenstraat 15 in Leeuwarden
Moderne hoekwoning met 4 slaapkamers in de geliefde Vosseparkwijk
Op zoek naar een instapklare, duurzame woning op een bijzondere locatie in Leeuwarden? Dan is Jan Luykenstraat 15 zeker het bekijken waard. Deze moderne woning (bouwjaar 2016) is in de afgelopen jaren op stijlvolle wijze uitgebreid en verbeterd, met onder andere een luxe stalen deur in de woonkamer (2023) en een complete verbouwing van de zolder (2020), waardoor er een extra slaapkamer / kantoor en wasruimte zijn gerealiseerd.
Met een woonoppervlakte van 114 m², 4 slaapkamers en een zonnige tuin op het zuiden is dit de ideale gezinswoning. Dankzij de hoekligging geniet je bovendien van veel privacy, vrij uitzicht aan de voorzijde en geen directe overburen.
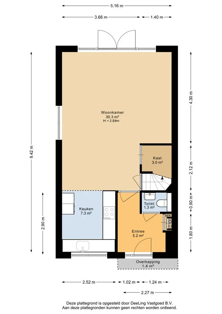
Indeling:
Begane grond:
Via de voorentree kom je in de hal met meterkast en toilet. De prachtige stalen deur geeft toegang tot de ruime woonkamer. De woonkamer beschikt over openslaande deuren naar de zonnige achtertuin en een praktische bergkast onder de trap. De open keuken in hoekopstelling is voorzien van diverse inbouwapparatuur en biedt volop werk- en bergruimte.
De achtertuin is gelegen op het zuiden en beschikt over een vrijstaande houten berging. Aan de achterzijde loopt een doodlopende straat, waar kinderen veilig en zorgeloos buiten kunnen spelen.
Eerste verdieping:
Op de eerste verdieping bevinden zich drie slaapkamers en een nette badkamer met ligbad, douche, toilet en wastafel.
Tweede verdieping:
In 2020 is de zolder verbouwd tot een volwaardige verdieping met een extra slaapkamer en een praktische wasruimte.
Bijzonderheden:
– Bouwjaar 2016
– Woonoppervlak ca. 114 m²
– Perceeloppervlak ca. 142 m²
– 4 slaapkamers
– Zolder verbouwd in 2020 (extra slaapkamer/ kantoor en wasruimte)
– Woonkamer uitgebreid in 2023 met luxe stalen deur
– Volledig geïsoleerd, energielabel A, HR++ beglazing
– Hoekwoning met vrij uitzicht, geen directe overburen
– Achtertuin op het zuiden met vrijstaande houten berging
– Gelegen aan een doodlopende straat, kindvriendelijke ligging
De Vosseparkwijk
De Vosseparkwijk is één van de meest gewilde wijken van Leeuwarden. Het is een sfeervolle, groene buurt met een mix van karakteristieke bebouwing en slechts een klein aantal nieuwbouwwoningen – waardoor deze woning extra bijzonder is. De wijk staat bekend om de rustige, kindvriendelijke straten, het park met veel groen en de centrale ligging. Scholen, sportvoorzieningen en winkels zijn in de directe nabijheid aanwezig, en binnen enkele minuten fiets je naar het bruisende centrum van Leeuwarden.
Wonen in de Vosseparkwijk betekent genieten van de perfecte balans tussen rust, ruimte en stadse voorzieningen – een plek waar dit soort woningen zelden beschikbaar komen.




















































