Omschrijving
Woning verkocht: Helling 21 in Heeg
In het dorp Heeg wordt deze starterswoning te koop aangeboden. Deze woning, gelegen op een mooi perceel, beschikt over twee slaapkamers en biedt een comfortabele leefruimte met aanzienlijk potentieel. Het is een ideale optie voor starters op de woningmarkt. Als je interesse overeenkomt met de onze, nodigen wij je uit om contact op te nemen met ons kantoor in Sneek.
Indeling:
Begane grond:
Kom binnen via de hal. Hier vind je het toilet, de opgang naar boven, de ingang naar de woonkamer. Laten we bij dat laatste beginnen. De woonkamer is ruim opgezet en hier is voldoende ruimte voor een fijne zithoek en eethoek. De keuken is half open en is voorzien van een standaard keukenblok. Aansluitend vind je hier de bijkeuken, hier is ruimte voor het witgoedapparatuur. Tenslotte bevindt zich op de begane grond ook nog de badkamer en een extra ruimte, ideaal als hobby- of werkkamer.
Eerste verdieping:
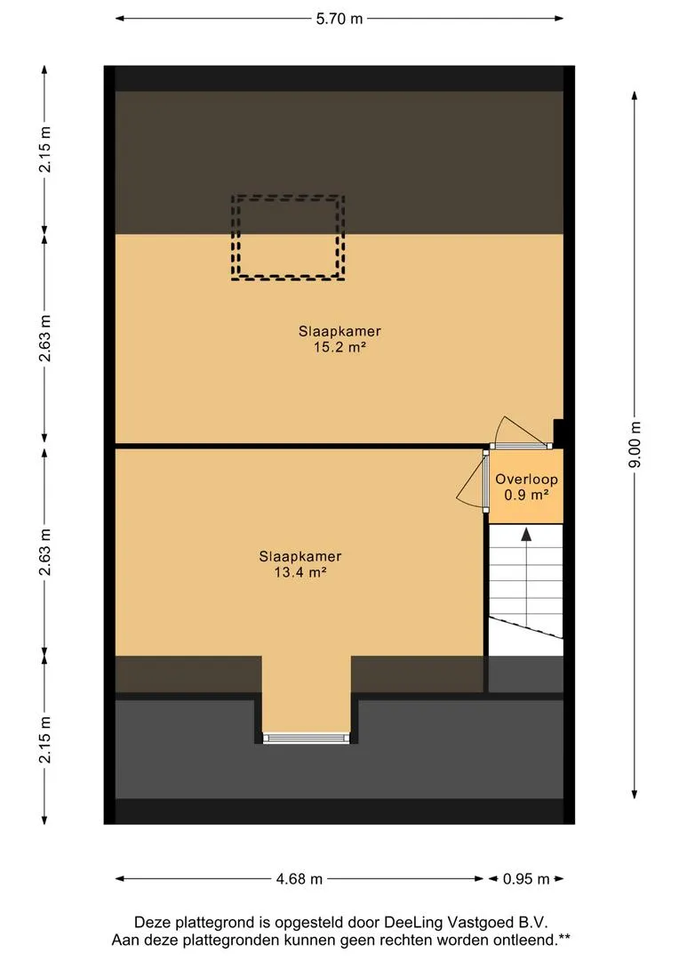
Op de eerste verdieping bevinden zich twee slaapkamers van diverse afmetingen.
Buiten:
Dankzij het mooie perceel is er zowel een voor- als achtertuin.
Goed om te weten:
– Woonoppervlakte 83 m²
– Perceeloppervlakte 175 m²
– Energielabel A
– Elkien voorwaarden zijn van toepassing.
HUUR JE OP DIT MOMENT EEN WONING VAN ELKIEN? DAN HEB JE VOORRANG OM IN TE SCHRIJVEN VOOR DEZE WONING EN TE KOPEN VOOR DE VRAAGPRIJS (zie voorwaarden Elkien in de tekst hieronder**).
Wordt de woning niet verkocht aan een huurder, dan wordt deze gegund aan de hoogste bieder met de koopsom als minimale inschrijfprijs. Inschrijving voor huurders alleen geldig met volledig ingevuld inschrijfformulier incl. documenten
** Jij huurt op dit moment een woning van Elkien (ingeschreven staan als woningzoekende telt niet);
** Indien meerdere huurders zich hebben ingeschreven, wordt de woning toegewezen op basis van loting;
** Indien jij huurder bent en met een medehuurder wilt kopen, dient deze tenminste 2 jaar ingeschreven te staan op hetzelfde huuradres (medehuurderschap) of van rechtswege door huwelijk/geregistreerd partnerschap of jullie huren ieder een woning van Elkien en willen deze woning samen kopen.
Voorwaarden Elkien:
* De woning wordt verkocht in de huidige staat;
* Antispeculatiebeding: de woning mag niet binnen drie jaar worden door verkocht;
* Verbod van verhuur: de woning mag drie jaar niet worden verhuurd. Uitzondering eerste graad bloedverwanten;
* Ouderdomsclausule: de bouwkwaliteit ligt lager dan bij nieuwe woningen;
* Asbest: de woning kan asbest bevatten, koper aanvaardt dit risico;
* Voorbehoud financiering: maximaal 6 weken na mondeling akkoord koper/verkoper;
* Sleuteloverdracht: maximaal 8 weken na mondeling akkoord koper/verkoper;
* Indien de woning later passeert dan 8 weken, betaalt koper € 20,- boete per dag aan verkoper;
* Koper dient een natuurlijk persoon te zijn;
* De leveringsakte wordt betaald door Elkien (huisnotaris Breuker Vellinga Wiersma Notarissen te Drachten).

































