Omschrijving
Woning beschikbaar: Heliconweg 11 in Leeuwarden
Aan de rand van de Vosseparkwijk in het westen van de stad, vind je deze prachtige statige hoekwoning. De zij-erker, het glas in lood en de mooie lichtinval zorgen voor een bijzonder sfeervol plaatje. Deze royale, goed onderhouden woning heeft een mooie beschutte achtertuin met achterom, zes slaapkamers, twee badkamers, een eigen oprit, een garage en maar liefst 159m² woonoppervlakte. In 2020 zijn op de begane grond en eerste verdieping alle ramen en deuren voorzien van kunststof kozijnen met HR++ glas en horren.
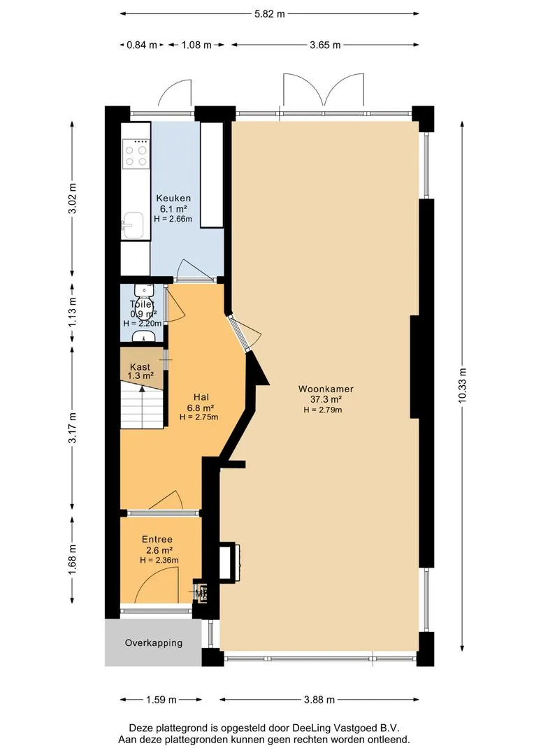
We nemen je mee naar binnen. De entree zet de toon voor wat je in de rest van de woning kan verwachten. Je wordt begroet door een mooie ruime hal met schitterende glas in lood details. Je vindt hier ook de garderobe, meterkast en het eerste toilet. Verder is er toegang tot de kelder. Dan de woonkamer, een heerlijke lichte ruimte. Door de vele raampartijen heeft de woonkamer een hele mooie lichtinval. De klassieke zij-erker en de glas in lood raampjes zorgen voor die typische jaren ’30 sfeer. De houten vloer en de openslaande deuren naar de tuin maken het plaatje af. De lichte tijdloze keuken is van alle gemakken voorzien en heeft een eigen deur naar de tuin. De bijkeuken bereik je in drie stappen via de overkapping vanuit de keuken. Deze is geïsoleerd en biedt plaats aan het witgoed. De achtertuin is onderhoudsarm en geeft veel privacy. Er zijn hier meerdere zitjes waar je heerlijk van de zon kan genieten. Verder is er een eigen oprit en en vrijstaande garage aanwezig. Er is een schutting geplaatst tussen de garage en de oprit. Deze kan desgewenst plaatsmaken zodat je de auto in de garage kunt parkeren.
Terug naar de hal. Via de vaste trap kom je op de ruime overloop van de eerste verdieping. Vanuit de overloop heb je toegang tot vier slaapkamers met inbouwkasten. Alle kamers zijn voorzien van mooie raampartijen waardoor ook hier een mooie lichtinval is. De master bedroom ligt aan de achterzijde en is mede door het aangrenzende balkon een bijzonder sfeervolle kamer met zicht op de tuin en over de wijk. Daarnaast vind je de eerste, recent vernieuwde badkamer met toilet, ligbad, inloopdouche en wastafelmeubel.
Tweede verdieping
Via eveneens een vaste trap komen we op de tweede verdieping. Hier vind je nog twee slaapkamers en de tweede badkamer. Door de hoogte van het huis zijn deze kamers verrassend groot en beide hebben een dakkapel waarvan de isolatie recent is verbeterd. Verder bevindt zich hier nog een keukenblokje en de tweede badkamer. deze is compleet met douche, toilet, ligbad en wastafel. Hierdoor is deze verdieping ideaal als gastenverdieping of voor een opgroeiend kind. Door de vele ruimte die het huis te bieden heeft, is het zeer geschikt voor grote gezinnen en is thuiswerken ook geen enkel probleem.
De Heliconweg is gelegen in de gewilde Vosseparkwijk. Deze wijk staat bekend om de sfeervolle architectuur en is daarom zeer geliefd bij velen. De wijk kent bovendien meerdere voorzieningen zoals scholen, kinderopvang, winkels en sportcentra. Er zijn verschillende supermarkten op loop- en fietsafstand en je fietst binnen 5 minuten naar het historische centrum van Leeuwarden en het centraal station. De Heliconweg ligt zeer gunstig ten opzichte van de haak om Leeuwarden. Binnen enkele minuten bereik je diverse uitvalswegen zoals de N31, A31 en A32.
Maak jij van dit prachtige huis jouw eigen fijne thuis? We zien je graag voor een bezichtiging!
Kenmerken
– Bouwjaar: 1941
– Woonoppervlak: 159 m²
– Energielabel: C
– 6 slaapkamers, 2 badkamers
– Kunststof kozijnen en HR++ beglazing met horren (begane grond en eerste verdieping 2020)
– Keuken vernieuwd in 2022
– Dakkapel opnieuw geïsoleerd
– HR-beglazing, EPS-korrels onder vloer, spouwmuur na-geïsoleerd
– CV-ketel van 2018
– Alarmsysteem








































































