Omschrijving
Woning onder bod: Hegeterp 1 in Workum
Wat een fijne verrassing aan de Hegeterp in Workum!
Deze comfortabele hoekwoning is gelegen aan een rustige, autoluwe straat in Workum en biedt circa 111 m² woonoppervlak. Dankzij de breedte van de woonkamer, de halfopen keuken en 4 slaapkamers is er volop leefruimte voor het hele gezin. De achtertuin is een fijne plek om te ontspannen of buiten te eten, terwijl het vrijstaande tuinschuurtje met vliering extra gebruiksgemak en opslagruimte biedt.
De woning, gebouwd in 1975, heeft een traditionele constructie met betonnen vloeren en een dwarskap met pannen. Goed onderhouden en grotendeels onderhoudsvrij dankzij de kunststof kozijnen en boeidelen. Met energielabel C en 8 zonnepanelen (2022) woon je hier energiezuinig en comfortabel.
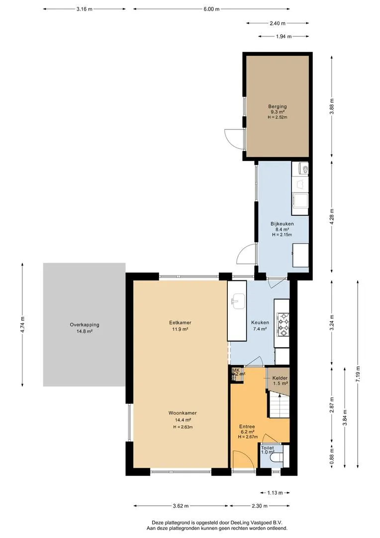
Begane grond:
Via de verzorgde voortuin stap je binnen in de hal. Hier vind je de meterkast met vernieuwde groepen, een praktische kelderkast, het moderne hangtoilet en de trapopgang naar boven. Vanuit de hal kom je in de woonkamer, een lichte ruimte dankzij de grote raampartijen, met voldoende plek voor zowel een comfortabele zithoek als een eethoek. De halfopen keuken sluit hier mooi op aan en is voorzien van een vaatwasser, combi-oven en gaskookplaat. De keuken vormt een nette, functionele basis en biedt volop mogelijkheden om deze naar eigen smaak verder te moderniseren.
Aansluitend bevindt zich de bijkeuken. Een praktische ruimte met witgoedaansluitingen op hoogte opstelling van de cv-ketel. Vanuit de bijkeuken is er directe toegang tot de achtertuin.
1e verdieping:
Op deze verdieping bevinden zich drie slaapkamers van goed formaat. Boven zijn overal horren geplaatst, dit zorgt voor extra comfort in de zomermaanden. De badkamer is functioneel ingericht met een douche, ligbad en wastafelmeubel. Daarnaast is er een royale inloopkast aanwezig, ideaal als extra bergruimte of om naar wens opnieuw in te delen.
2e verdieping:
Via de vaste trap bereik je de tweede verdieping. Hier bevindt zich de vierde slaapkamer, voorzien van een Velux dakraam en verrassend veel opbergruimte achter de knieschotten. Op deze verdieping hangt ook de omvormer van de zonnepanelen. Verder is er een praktische vliering voor seizoensspullen en extra opslag.
Buitenruimte:
Zowel aan de voor- als achterzijde beschik je over tuin. De achtertuin ligt op het noordwesten en biedt veel privacy. Dankzij de gunstige afmetingen is er altijd wel een plek in de zon of juist in de schaduw te vinden.
De oprit is recent opnieuw bestraat en voorzien van een carport. In de tuin staat een vrijstaand tuinschuurtje, ideaal voor fietsen of gereedschap. De combinatie van tuin, carport en oprit maakt het geheel praktisch en prettig in gebruik.
Kenmerken:
– Hoekwoning aan een rustige, autoluwe straat
– Ca. 111 m² woonoppervlakte
– Bouwjaar 1975, comfortabel en goed onderhouden
– Vier slaapkamers
– Traditionele bouw met kunststof kozijnen en boeidelen (gedeeltelijk uitgezonderd)
– Energielabel C
– Acht zonnepanelen (2022) en CV-ketel 2016
– Privacyvolle tuin op het noordwesten
– Recent bestrate oprit en carport
– Praktisch tuinschuurtje met werkbank en vliering
Workum:
Workum is één van de elf Friese steden en ligt via een sluis en een korte vaarweg verbonden met het IJsselmeer. Het stadje telt circa 4.500 inwoners en biedt uitgebreide voorzieningen op het gebied van winkels, sport en zorg. Waterrecreanten en toeristen vinden hier hun plek: het strand, de Friese Meren, de vaarverbinding “De Diepe Dolte” en het Jopie Huisman Museum maken Workum aantrekkelijk. De omgeving leent zich uitstekend voor wandel- en fietstochten langs de kust of door pittoreske dorpjes.
De woning ligt op korte afstand van het centrum, scholen en diverse voorzieningen, terwijl de bereikbaarheid via de N359 goede verbindingen naar omliggende plaatsen biedt.
Geïnteresseerd? Wacht niet langer en plan direct een bezichtiging!


















































