Omschrijving
Woning verkocht: Fedde Schurerwei 4 in Leeuwarden
Bent u op zoek naar een woning die volop ruimte biedt voor het hele gezin? Deze ruime gezinswoning heeft maar liefst 6 slaapkamers, een lichte woonkamer met mooie keuken, een diepe zonnige tuin én een garage met elektrische deur. De hoge goot zorgt voor mooie, ruime kamers op de verdiepingen.
Wonen in Westeinde
De woning ligt in een rustige en groene wijk in het westen van Leeuwarden. Vanaf hier fietst u in een mum van tijd naar de binnenstad. Ook de belangrijkste uitvalswegen, winkels, scholen en sportfaciliteiten bevinden zich in de directe nabijheid.
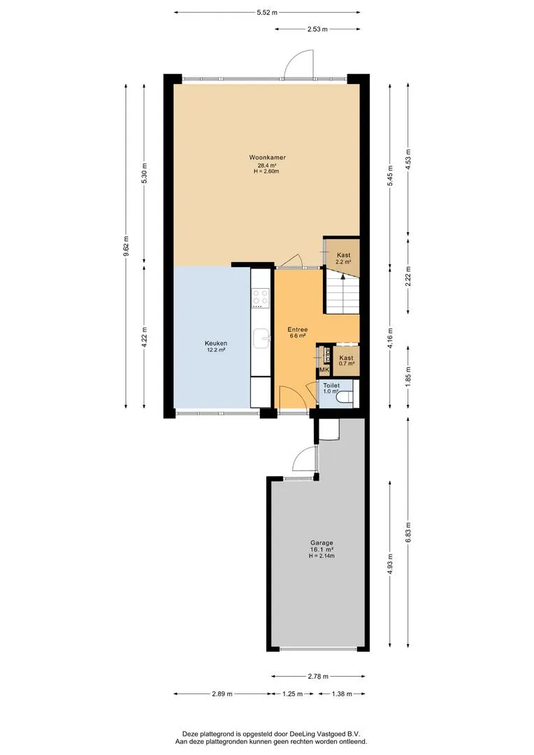
Begane grond
U komt binnen in de hal. Aan de rechterzijde bevinden zich het moderne toilet en de meterkast. Verder is er een extra kast en de opgang naar de trap. Rechtdoor loopt u de lichte woonkamer in, voorzien van een houten vloer en grote ramen. De open keuken sluit hierop aan en is uitgerust met moderne inbouwapparatuur.
1e verdieping
De overloop biedt toegang tot vier slaapkamers en een handige bergkast. De badkamer is functioneel ingericht met een douchecabine, wastafel, tweede toilet en aansluitingen voor wasmachine en droger.
2e verdieping
Via een vaste trap bereikt u de tweede verdieping met overloop en twee extra slaapkamers. Beide kamers zijn voorzien van grote Velux dakramen die zorgen voor veel licht en frisse lucht.
Buitenruimte en garage
Aan de voorzijde beschikt de woning over een aangebouwde stenen garage met elektrische deur. De achtertuin is zonnig gelegen, diep van formaat en voorzien van een achterom. Een fijne plek voor spelende kinderen of om in de zomer lekker buiten te zitten.
Kenmerken
– Energielabel B
– Woonoppervlakte: 135 m²
– 6 slaapkamers
– Nefit Proline (2020) HR CV
– Dak en muurisolatie
– Nagenoeg geheel kunststofkozijnen
– HR++ en dubbel glas
– Natuurlijke ventilatie
– Garage met elektrische deur
– Zonnige en nieuw aangelegde achtertuin met achterom
Bent u op zoek naar een woning met volop ruimte en mogelijkheden? Maak dan snel een afspraak voor een bezichtiging en ontdek wat deze woning u te bieden heeft!















































