Omschrijving
Woning beschikbaar: Epkemastraat 27 in Bolsward
Leuke hoekwoning met vier slaapkamers in Bolsward
Op een fijne locatie in Bolsward staat deze hoekwoning met vier slaapkamers, een lichte woonkamer en een zonnige tuin. De woning biedt een mooie basis om helemaal naar eigen smaak in te richten.
Indeling:
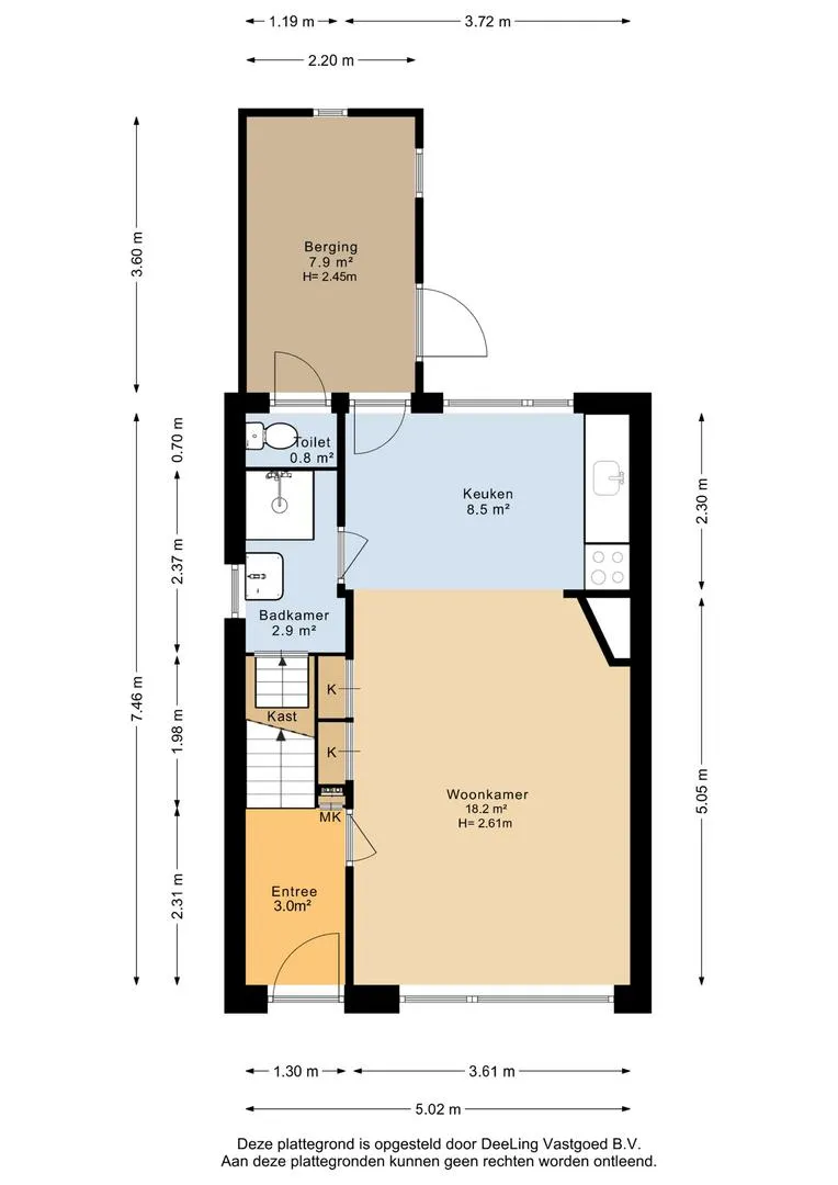
Begane grond:
Op de begane grond vind je de hal met toilet en trapopgang, een lichte woonkamer met zicht op de straat, een badkamer welke eenvoudig is uitgerust en een eenvoudige keuken met toegang tot de tuin en de berging.
Eerste verdieping:
Op de eerste verdieping bevinden zich vierslaapkamers van verschillend formaat. De bergzolder is bereikbaar via een vlizotrap en biedt extra opslagruimte.
Buiten:
De woning heeft een beschutte achtertuin met achterom, een zonnige voortuin en ligt op een hoek, waardoor je net wat meer ruimte en privacy hebt. Parkeren kan eenvoudig in de straat.
Goed om te weten:
– Woonoppervlakte ca. 74 m²
– Perceeloppervlakte bijna 210 m²
– Energielabel E
– Voorwaarden van Elkien van toepassing
Ben jij enthousiast over deze woning? Maak dan snel een afspraak voor een bezichtiging!
Alle bezichtigingen (ook niet-huurders) dienen tijdens de bezichtiging ochtend op donderdag 26 februari tussen 10:30 uur en 12:30 uur plaats te vinden. Voor een afspraak tijdens de bezichtiging ochtend kan je bellen met ons kantoor in Sneek. We verwelkomen je graag! De sluiting van de inschrijving eindigt op woensdag 4 maart om 12:00 uur.
HUUR JE OP DIT MOMENT EEN WONING VAN ELKIEN? DAN HEB JE VOORRANG OM IN TE SCHRIJVEN VOOR DEZE WONING EN TE KOPEN VOOR DE VRAAGPRIJS (zie voorwaarden Elkien in de tekst hieronder**).
Wordt de woning niet verkocht aan een huurder, dan wordt deze gegund aan de hoogste bieder met de koopsom als minimale inschrijfprijs.
Voorwaarden Elkien:
* De woning wordt verkocht in de huidige staat;
* Antispeculatiebeding: de woning mag niet binnen drie jaar worden door verkocht;
* Verbod van verhuur uitgezonderd verhuur aan eerste graad bloedverwanten: de woning mag drie jaar niet worden verhuurd.
* Ouderdomsclausule: de bouwkwaliteit ligt lager dan bij nieuwe woningen;
* Voorbehoud financiering: maximaal 6 weken na mondeling akkoord koper/verkoper;
* Sleuteloverdracht: maximaal 8 weken na mondeling akkoord koper/verkoper;
* Indien de woning later passeert dan 8 weken, betaalt koper € 20,- boete per dag aan verkoper;
* Koper dient een natuurlijk persoon te zijn;
* De leveringsakte wordt betaald door Elkien (huisnotaris Breuker Netwerk Notarissen te Drachten);
** Jij huurt op dit moment een woning van Elkien (ingeschreven staan als woningzoekende telt niet);
** Indien meerdere huurders zich hebben ingeschreven, wordt de woning toegewezen op basis van loting;
** Indien jij huurder bent en met een medehuurder wilt kopen, dient deze tenminste 2 jaar ingeschreven te staan op hetzelfde huuradres (medehuurderschap) of van rechtswege door huwelijk/geregistreerd partnerschap of jullie huren ieder een woning van Elkien en willen deze woning samen kopen



































