Omschrijving
Woning verkocht: Duivesteinstraat 1 in Leeuwarden
Aan de rustige Duivesteinstraat in de wijk Huizum – Bornia staat deze goed onderhouden en verrassend ruime hoekwoning met berging. De woning is de afgelopen jaren flink gemoderniseerd, waardoor je hier direct comfortabel kunt wonen.
Dit alles op korte afstand van zowel het centrum en winkelstraat “De Schrans” als de diverse ontsluitingswegen. Aan de voorzijde bevindt zich volop parkeerruimte en openbaar groen met groenvoorzieningen, zodat je geen directe overburen hebt.
Belangrijkste kenmerken op een rij:
Nieuwe keuken (2021) van Poortman keuken met natuurstenen blad en hoogwaardige inbouwapparatuur: Neff inductiekookplaat, stoomoven, koelkast, oven én een gloednieuwe vaatwasser (2024).
Zonnepanelen (in totaal 19 stuks): 12 op het oosten (2015) en 7 op het westen (2022)
Isolatie: Dak- en vloerisolatie (met chips), plus HR++ beglazing (alle ramen vernieuwd, m.u.v. achterpui)
Cv-ketel Intergas (2019)
Elektronische verwarming aanwezig
Buitenschilderwerk uitgevoerd in 2020
Indeling
Begane grond:
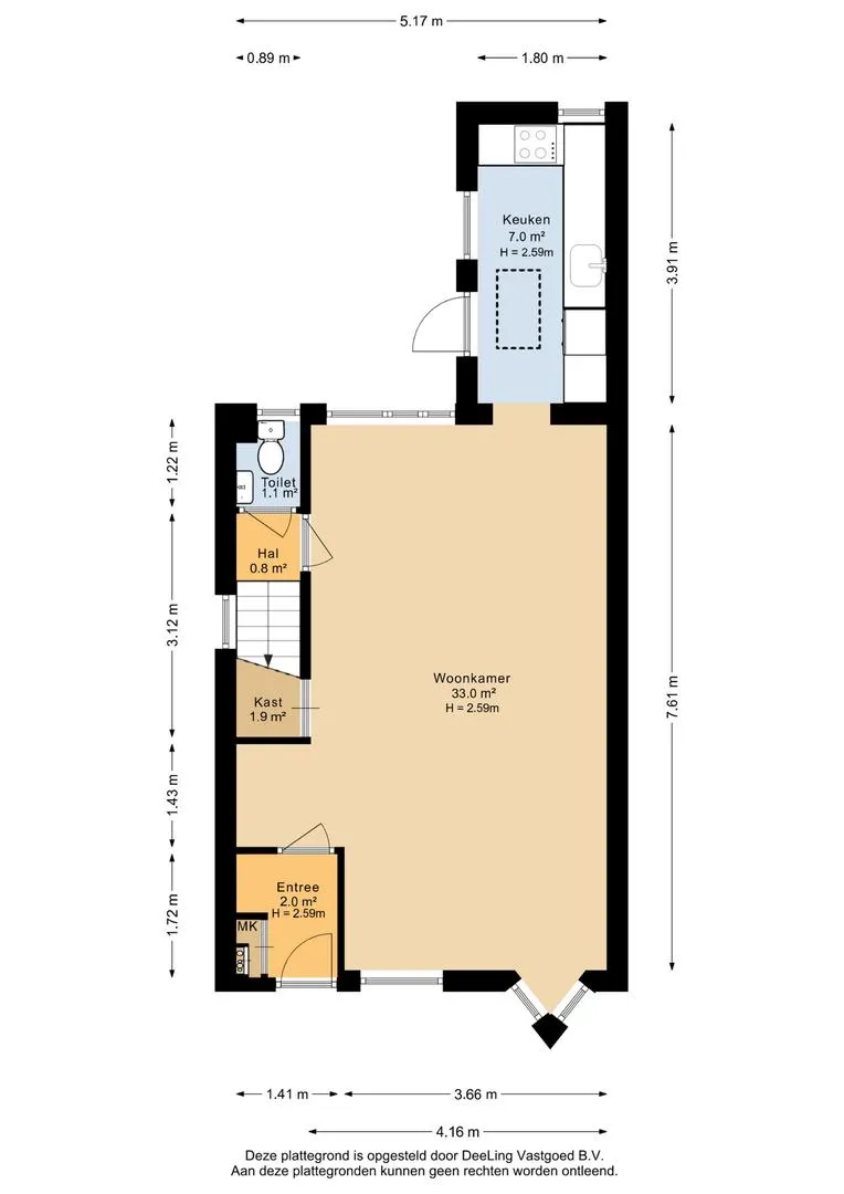
Je komt binnen in een nette hal, met daarachter een trapkast en een trapopgang. Het toilet met fontein is te bereiken via de deur tegenover de trapopgang. De lichte woonkamer is voorzien van een strakke PVC-vloer en biedt uitzicht op de voor- en achtertuin. De luxe open keuken aan de achterzijde vormt het hart van de woning en is een echte blikvanger. Boven de keuken is een vliering gerealiseerd die toegankelijk is via een vlizotrap.
Drie ruime slaapkamers, allemaal voorzien van laminaatvloeren en de twee grootste kamers zijn voorzien van mechanische ventilatie. De badkamer is uitgerust met een ligbad, tweede toilet en dubbele wastafel.
Tweede verdieping (zolder):
Via een vaste trap bereik je de zolderverdieping met laminaatvloer, ruimte voor witgoedopstelling en veel bergruimte. Ideaal als extra werk- of hobbyruimte.
Buitenruimte
De zonnige tuin rondom de woning biedt veel privacy en heeft een houten berging met elektra. Dankzij de hoekligging profiteer je hier van extra ruimte en vrijheid. Ook is de tuin bereikbaar via een achterom.
Samengevat:
– Hoekwoning met veel privacy
– Moderne keuken
– Drie ruime slaapkamers + ruime zolder
– Zonnepanelen en goede isolatie
– Tuin met berging en achterom
– Totale perceeloppervlakte 154 m² eigen grond
– Rustige ligging in kindvriendelijke buurt
Ben je op zoek naar een instapklare woning met energiezuinige voorzieningen en veel ruimte? Dan is Duivesteinstraat 1 in Leeuwarden zéker een bezichtiging waard. Neem contact met ons op voor een afspraak!




















































