Omschrijving
Woning verkocht onder voorbehoud: Dokkumertrekweg 49 in Leeuwarden
Wat een fantastische plek aan de Dokkumer Ee!
Bijzonderheden op een rij:
• Ruime hoekwoning met 3 woonlagen en 5 slaapkamers
• Moderne bouw (2016) met hoog comfortniveau en energielabel A+
• Perceel van 258 m² aan de Elfstedenroute (Dokkumer Ee)
• Geïsoleerd buitenverblijf, ideaal voor hobby, werk of ontspanning
• Rustige ligging met stad en natuur binnen handbereik
Wonen aan open vaarwater met vrij uitzicht in een moderne hoekwoning uit 2016 met maar liefst 145 m² woonoppervlak. Hier geniet je dagelijks van het leven aan het water, terwijl de binnenstad van Leeuwarden en het Leeuwarder Bos zich op korte afstand bevinden. De woning beschikt over een fijne open indeling en dankzij de openslaande deuren aan zowel de voor- als achterzijde loopt binnen moeiteloos over in buiten. Aan de voorzijde creëer je eenvoudig een heerlijk zitje met uitzicht over de Dokkumer Ee, waar je kunt ontspannen en de boten voorbij ziet varen. In de achtertuin is in 2019 een geïsoleerd tuinhuis gerealiseerd, een waardevolle extra ruimte die perfect dienst kan doen als hobbyruimte, werkplek, logeerplek of plek voor visite.
De woning is gebouwd in 2016 en voorzien van alle moderne gemakken. De solide bouwstijl met betonnen vloeren zorgt voor een prettig wooncomfort en een degelijke basis. Dankzij onder andere 10 zonnepanelen (2017), volledige isolatie, HR++ beglazing en een energielabel A+ woon je hier comfortabel, energiezuinig en helemaal klaar voor de toekomst.
Begane grond:
Je komt binnen in de entree met toilet en meterkast. Vanuit hier loop je door naar de royale doorzonwoonkamer, waar grote raampartijen en openslaande deuren zorgen voor veel licht en een open, uitnodigende sfeer. Een fijne plek voor lange avonden met familie of vrienden. Aan de achterzijde loopt de woonkamer door naar de eetkamer en keuken. Dankzij de open indeling in combinatie met het split-level niveauverschil ontstaat er een speelse, natuurlijke afscheiding tussen wonen en koken. De moderne keuken met kookeiland is voorzien van diverse inbouwapparatuur, waaronder een koel-vriescombinatie, combioven, vaatwasser en inductiekookplaat.
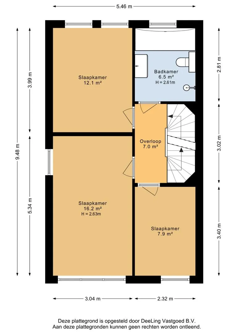
1e verdieping:
De overloop geeft toegang tot drie ruime slaapkamers, allemaal praktisch ingedeeld en prettig licht. De moderne badkamer is compleet uitgevoerd met een inloopdouche, ligbad, tweede toilet en wastafelmeubel. Via de vaste trap bereik je de tweede verdieping.
2e verdieping:
Een zeer ruime zolderverdieping met twee slaapkamers en en een technische ruimte met plek voor de wasmachine, de opstelling van de cv-ketel en de mechanische ventilatie. In de nok van de woning bevindt zich nog een praktische vliering met een stahoogte van circa 2,3 meter. Ideaal voor koffers, kerstspullen of andere seizoensitems.
Buitenruimte:
Zowel aan de voor- als achterzijde beschikt de woning over tuin en meerdere zitmogelijkheden. Aan de voorzijde geniet je van vrij uitzicht over de Dokkumer Ee. Achter de woning bevindt zich een handige berging voor het tuingereedschap en daarnaast een ruim vrijstaand bijgebouw, gebouwd in 2019. Dit bijgebouw bestaat uit een geïsoleerd tuinhuis, een berging/garage, een houthok en een buitenkeuken.
Het geïsoleerde tuinhuis met schuifpui is een veelzijdige extra ruimte die je geheel naar eigen wens kunt invullen. De garage, ook bereikbaar via een schuifdeur aan de achterzijde vanaf de straat is ideaal voor het stallen van een motor of fietsen. De buitenkeuken en het houthok zorgen voor extra comfort en maken dit een heerlijke plek voor lange, gezellige zomeravonden.
Kenmerken:
– Bouwjaar 2016
– Woonoppervlakte ca. 145 m²
– Energielabel A+
– Intergas cv-ketel (2016)
Wonen aan het water, met ruimte voor het hele gezin, een energiezuinige basis en volop mogelijkheden binnen én buiten. Deze hoekwoning aan de Dokkumer Ee biedt een woonbeleving die je maar zelden tegenkomt. Maak snel een afspraak voor een bezichtiging en ervaar zelf hoe bijzonder deze plek is.
































































