Omschrijving
Woning verkocht: De Slachterij 18 in Akkrum
Wonen aan het water in hartje Friesland – jouw droomhuis in Akkrum!
Droom jij ervan om ’s ochtends je gordijnen open te trekken en direct uit te kijken over het water? Bij deze prachtige woning uit 2006 in Akkrum wordt dat werkelijkheid! Gelegen aan het vaarwater dat je zo naar de Friese meren brengt, is dit dé plek voor watersportliefhebbers en rustzoekers.
Je beschikt hier over meerdere ligplekken voor je eigen boten: één over de volledige lengte van de kavel aan de achterzijde én een royale ligplek aan de zijkant van de woning. Stap dus zó vanuit je tuin aan boord voor een ontspannen tocht over het water.
De woning zelf is ruim en licht, met een woonoppervlakte van maar liefst 141 m². Duurzaam wonen? Dat zit wel goed! Deze woning heeft energielabel A en is voorzien van maar liefst 12 zonnepanelen. Dat betekent lagere energielasten én een bijdrage aan een groenere toekomst.
Bij binnenkomst stap je in de ruime entree. Vanuit de hal heb je toegang tot het moderne toilet, de meterkast en de trapopgang naar de eerste verdieping.
Loop je verder, dan kom je in de royale, lichte woonkamer. Hier kijk je prachtig uit over het water aan de achterzijde van de woning. De grote raampartijen zorgen voor veel daglicht en via de openslaande deuren loop je zo het richting het water.
Aan de voorzijde van de woning vind je de keuken in L-opstelling, compleet met inbouwapparatuur. Ook is hier plek voor de eettafel.
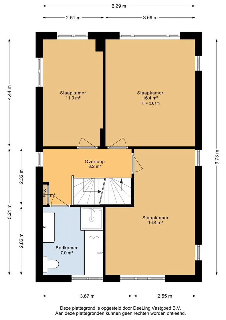
Op de eerste verdieping vind je drie comfortabele slaapkamers en een complete badkamer met ligbad, aparte douche, toilet en wastafel. De tweede verdieping biedt nog volop ruimte voor een vierde slaapkamer, een thuiswerkplek of hobbyruimte.
Bovendien woon je in een rustige straat met je eigen oprit en een aangebouwde ruime garage met openslaande deuren – ideaal voor fietsen of extra bergruimte. Zowel aan de achter- als aan de zijkant zijn er terrassen gecreëerd om te kunnen genieten van het wonen aan het water.
Goed om te weten:
– woonoppervlak: 141m2;
– energielabel A;
– 12 zonnepanelen;
– 2 ligplaatsen, achter en naast het huis;
– niet bewoningsclausule van toepassing.
Kortom: genieten van comfort, energiezuinig wonen en het ultieme buitenleven – mét je eigen boot voor de deur. Zie jij jezelf hier al wonen? Maak dan snel een afspraak en kom deze unieke plek zelf beleven!


























































