Omschrijving
Woning verhuurd: De Kolken 70 in Drachten
VANWEGE DE OVERWELDIGENDE BELANGSTELLING NEMEN WIJ MOMENTEEL GEEN NIEUWE INTERESSEAANVRAGEN MEER IN BEHANDELING.
Goed onderhouden appartement op de 2e woonlaag met balkon aan zowel de zuid- als noordzijde. Er is een eigen (fietsen)berging in het souterrain aanwezig.
Indeling
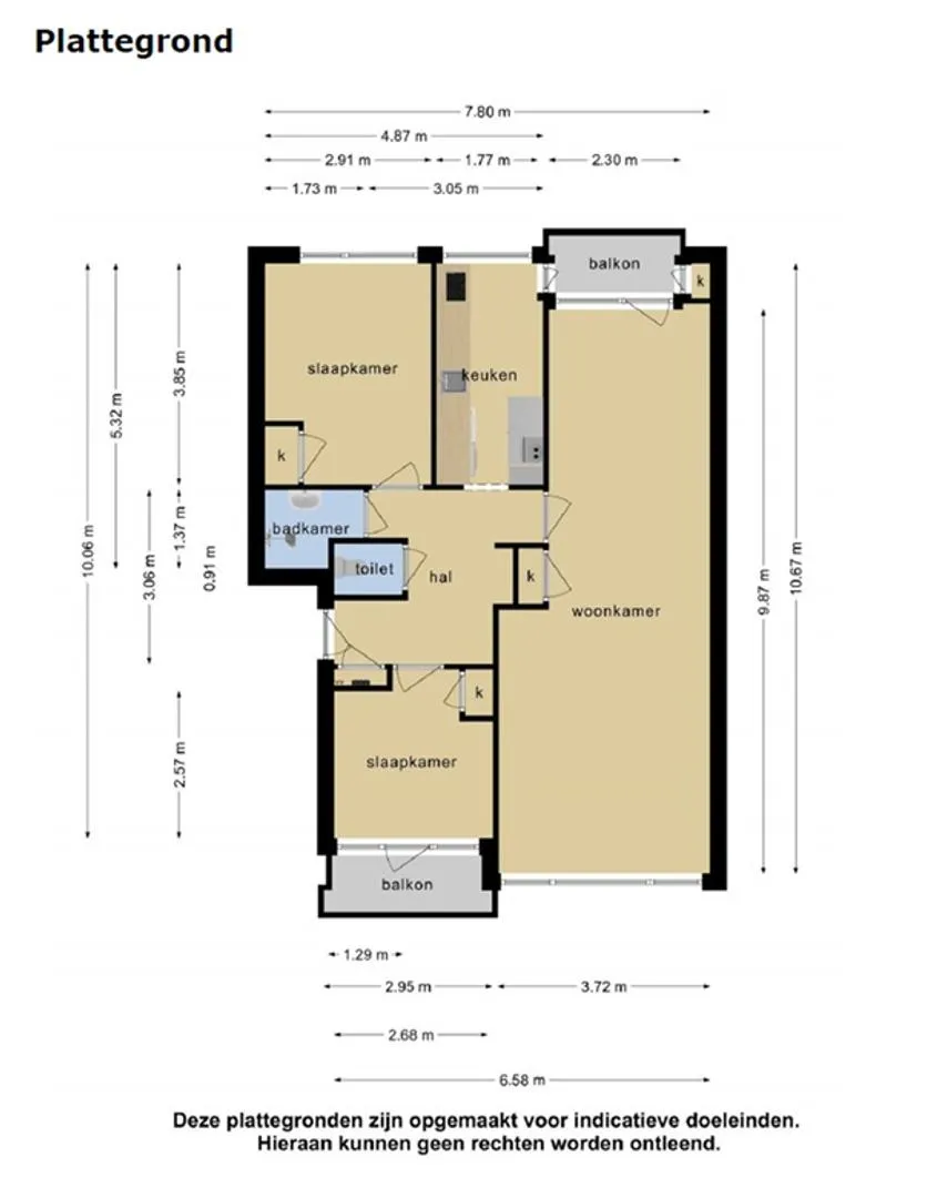
Via het afgesloten portiek met bellentableau en het trappenhuis komt u bij het appartement. De ruime hal geeft toegang tot alle vertrekken, de meterkast en een handige garderobenis. De lichte woonkamer beschikt over een vaste kast en grenst, net als de keuken, aan het balkon aan de achterzijde (noord), waar ook een praktische bergkast aanwezig is.
De keuken is ingericht met een nette keukenopstelling, een wasmachineaansluiting en de cv-ketel. Vanuit de hal bereikt u de vernieuwde badkamer met douche en wastafel, het separate vernieuwde toilet en twee slaapkamers, beide voorzien van vaste kasten. Eén van de slaapkamers heeft toegang tot het zonnige balkon aan de voorzijde (zuid).
________________________________________
Bijzonderheden voor huurders
• Grotendeels gerenoveerd in 2013 (nieuwe badkamer, toilet en elektra)
• Twee goed bemeten slaapkamers
• Kunststof kozijnen met isolerende beglazing: comfortabel en energiezuinig
• Verwarming via cv-ketel
• Energielabel B (lagere energiekosten)
• Twee balkons: één op het zuiden en één op het noorden
• Eigen berging met elektra in het souterrain—handig voor opslag of hobby’s
• Veilig complex met gesloten portiek en intercom
• Voldoende parkeergelegenheid rond het gebouw
Nadere informatie en voorwaarden:
– Te huur per direct.
– Er wordt in ieder geval een minimale waarborgsom verlangd van 1x de maandhuur.
– De minimale huurperiode bedraagt 1 jaar en loopt vervolgens door voor onbepaalde tijd.
– U dient een jaarcontract met een afgegeven intentieverklaring of een vaste aanstelling bij een werkgever te hebben (een uitzendcontract of studiefinanciering wordt niet geaccepteerd) of pensioen en AOW te ontvangen.
– Bij meerdere inkomens, zal het laagste inkomen voor 60% worden meegenomen in de berekening.
– U dient niet met achterstanden geregistreerd te zijn bij BKR en/of in het verleden in aanraking te zijn geweest met incassobureau’s (dit zal door ons worden gecheckt).





























