Omschrijving
Woning verkocht: De Finne 12 in Wytgaard
Ruimte, comfort en energiezuinig wonen in het gezellige Wytgaard – De Finne 12
Bent je op zoek naar een ruime twee-onder-een-kapwoning met veel potentie, een zonnige tuin en een energiezuinig karakter? Dan is De Finne 12 in Wytgaard absoluut een bezichtiging waard!
Deze goed onderhouden woning uit 2000 is gebouwd op 350 m² eigen grond en biedt met zijn ruime indeling, energiebesparende voorzieningen en fijne ligging een ideale woonplek voor (jonge) gezinnen of stellen die op zoek zijn naar rust en ruimte – maar toch vlak bij Leeuwarden willen wonen.
Indeling:
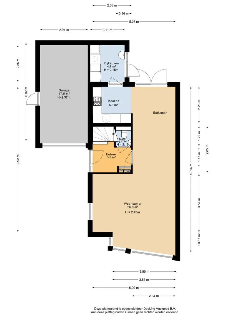
Begane grond:
Via de entree met hal, toilet (voorzien van een hangend closet en fontein) betreedt je de lichte woonkamer. De laminaatvloer en de openslaande tuindeuren zorgen voor een frisse en ruime uitstraling.
De open keuken is voorzien van een kookplaat, afzuigkap, vaatwasser, koelkast en vriezer (de inbouwkoelkast en vriezer zijn aan vervanging toe). Aansluitend vindt je de praktische bijkeuken met witgoedaansluiting en toegang tot de garage.
Onder de laminaatvloer liggen nog plavuizen.
De garage is niet geïsoleerd, maar biedt veel bergruimte en mogelijkheden. De houten berging in de tuin heeft aandacht nodig, maar kan worden omgetoverd tot een fijne hobby- of werkruimte.
1e verdieping
Overloop met toegang tot drie slaapkamers. Twee kamers zijn voorzien van laminaat, de ouderslaapkamer heeft vloerbedekking. De badkamer is compleet met een ligbad, douche, wastafel én comfortabele vloerverwarming. De rolluiken aan de westkant zorgen een voor aangenaam binnenklimaat tijdens warme dagen.
2e verdieping
Ruime overloop met opstelplaats voor de cv-ketel en de WTW-installatie. Hier bevindt zich ook een extra slaapkamer – ideaal als kantoor, logeerkamer of speelruimte.
Buitenruimte:
De achtertuin ligt gunstig op de zon en biedt volop privacy. Hier is ruimte voor spelen, tuinieren of lekker ontspannen. De voortuin en oprit maken het geheel af – met parkeergelegenheid op eigen terrein.
Belangrijkste kenmerken:
Perceel 350 m² eigen grond
Bouwjaar 2000
Energiezuinig, 9 zonnepanelen (2022) en een zuinige cv-ketel (REMEHA, nov. 2021, eigendom)
Laag gasverbruik
Ruime oprit, garage en bijkeuken
Geïsoleerde woning met 4 slaapkamers
Lage energielasten
Tuin met veel privacy
Rustige en kindvriendelijke buurt
Slechts 10 autominuten van Leeuwarden
Een fijne gezinswoning met ruimte om te groeien – klaar voor de volgende stap?
Maak een afspraak voor een bezichtiging en ontdek zelf de mogelijkheden van deze leuke woning aan De Finne 12 in Wytgaard!





















































