Omschrijving
Woning beschikbaar: Bûkenhage 20 in Lippenhuizen
Op zoek naar een keurige hoekwoning aan een rustige straat in Lippenhuizen? Deze woning aan de Bûkenhage beschikt over een lichte doorzonkamer, een eigen oprit en een diepe achtertuin op het westen met vrij uitzicht over de achterliggende landerijen.
Lippenhuizen is een gezellig dorp aan de Compagnonsfeart, onderdeel van de beroemde Friese Turfroute. Het dorp biedt alle basisvoorzieningen, van supermarkt en eetcafé tot basisschool en kinderopvang. Omringd door landerijen, bos en heide geniet je hier van rust én ben je snel in Gorredijk, Heerenveen of Drachten.
Indeling
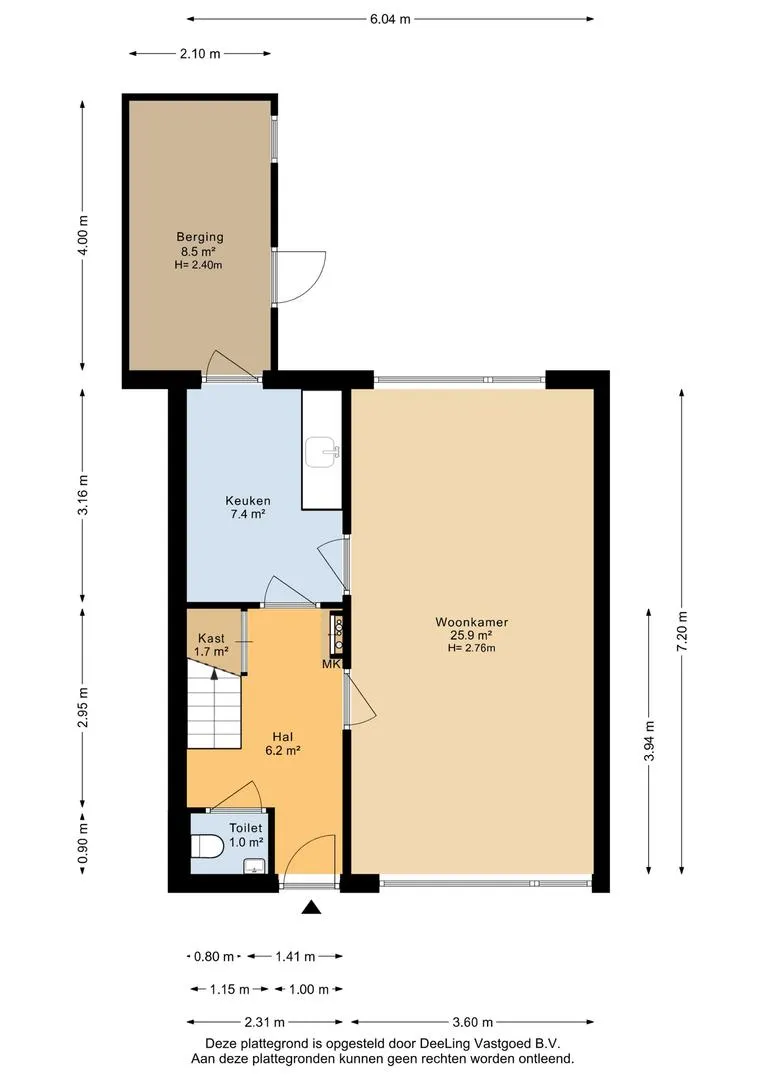
Begane grond:
Binnenkomst in de entree met toegang tot het toilet, trapopgang naar de verdieping, meterkast en trapkast. De woonkamer biedt een aangenaam uitzicht op de straat aan de voorzijde en een prettig zicht op de tuin en landerijen aan de achterkant. De dichte keuken is via de woonkamer bereikbaar en beschikt over een eenvoudige opstelling. Vanuit de keuken kom je in de bijkeuken/berging.
Verdieping:
De overloop leidt naar drie slaapkamers en de badkamer. De master bedroom van circa 15 m² bevindt zich aan de achterzijde. De badkamer is voorzien van een douche, toilet en wastafel.
Tweede verdieping:
Een vaste trap brengt je naar de zolder. Hier bevindt zich een extra slaapkamer, eventueel ook te gebruiken als hobby of fitnessruimte. Tevens bevindt zich hier de technische ruimte/berging met de cv-ketel en ruimte voor de wasmachine en/of droger.
Buiten:
De achtertuin is gelegen op het westen, waardoor je tot in de late uurtjes kunt genieten van de ondergaande zon. Er is een mooi vrij uitzicht over het weiland achter de woning. Via het mandelig stuk grond kun je achterom naar de woning toe.
Bijzonderheden:
– Woonoppervlakte 106 m²;
– Perceeloppervlakte: 258 m²;
– Energielabel C;
– Voorwaarden Elkien zijn van toepassing.
Alle bezichtigingen (ook niet-huurders) dienen tijdens de bezichtigingsochtend op dinsdag 30 december tussen 10:00 uur en 12:00 uur plaats te vinden. Voor het maken van een afspraak voor een bezichtiging kun je contact opnemen met ons kantoor in Heerenveen. We verwelkomen je graag! De inschrijving sluit op woensdag 7 januari om 12.00 uur.
HUUR JE OP DIT MOMENT EEN WONING VAN ELKIEN? DAN HEB JE VOORRANG OM IN TE SCHRIJVEN VOOR DEZE WONING EN TE KOPEN VOOR DE VRAAGPRIJS (zie voorwaarden Elkien in de tekst hieronder**).
Wordt de woning niet verkocht aan een huurder, dan wordt deze gegund aan de hoogste bieder met de koopsom als minimale inschrijfprijs.
Voorwaarden Elkien:
* De woning wordt verkocht in de huidige staat;
* Antispeculatiebeding: de woning mag niet binnen drie jaar worden door verkocht;
* Verbod van verhuur uitgezonderd verhuur aan eerste graad bloedverwanten: de woning mag drie jaar niet worden verhuurd.
* Ouderdomsclausule: de bouwkwaliteit ligt lager dan bij nieuwe woningen;
* Voorbehoud financiering: maximaal 6 weken na mondeling akkoord koper/verkoper;
* Sleuteloverdracht: maximaal 8 weken na mondeling akkoord koper/verkoper;
* Indien de woning later passeert dan 8 weken, betaalt koper € 20,- boete per dag aan verkoper;
* Koper dient een natuurlijk persoon te zijn;
* De leveringsakte wordt betaald door Elkien (huisnotaris Breuker Netwerk Notarissen te Drachten);
** Jij huurt op dit moment een woning van Elkien (ingeschreven staan als woningzoekende telt niet);
** Indien meerdere huurders zich hebben ingeschreven, wordt de woning toegewezen op basis van loting;
** Indien jij huurder bent en met een medehuurder wilt kopen, dient deze tenminste 2 jaar ingeschreven te staan op hetzelfde huuradres (medehuurderschap) of van rechtswege door huwelijk/geregistreerd partnerschap of jullie huren ieder een woning van Elkien en willen deze woning samen kopen

































