Omschrijving
Woning beschikbaar: Aldewei 10 in Workum
Ruime en eigentijdse twee-onder-een-kapwoning in Workum!
Wie op zoek is naar comfort, ruimte en energiezuinig wonen, voelt zich direct thuis aan de Aldewei 10. Deze modern afgewerkte, recht opgetrokken woning biedt een royale woonkamer met leef-keuken, vier slaapkamers, vernieuwde tuin en gunstig energielabel A ideaal voor gezinnen en iedereen die zonder klussen wil verhuizen.
Indeling
Begane grond:
Bij binnenkomst kom je in de hal met gemoderniseerde trap en toilet en met toegang tot de lichte en opvallend ruime woonkamer. Deze strekt zich uit over maar liefst 13 meter, wat zorgt voor een zeer royale leefruimte met veel natuurlijke lichtinval. De screens en zonwering aan de achterzijde bieden op elke verdieping extra comfort op zonnige dagen. De begane grond is voorzien van een vernieuwde betonnen vloer met vloerverwarming, waardoor het binnenklimaat het hele jaar door aangenaam blijft. De hele woning is slim voorzien van veel opslagruimte door inbouwkasten, trapkasten en knieshot-bergingen.
De keuken met bar is modern ingericht en voorzien van vernieuwde koelkast en vaatwasser, hete luchtoven, Quooker/elektrische warmwater boiler en 5 pits inductiekookplaat met afzuigkap. Vanuit de keuken betreed je gemakkelijk de tuin door een dubbele schuifpui. Ook is er directe toegang tot de geïsoleerde bijkeuken, die tevens beschikt over een nieuwe achterdeur naar de tuin. Hier is ook de aansluiting voor het witgoed.
Verdiepingen:
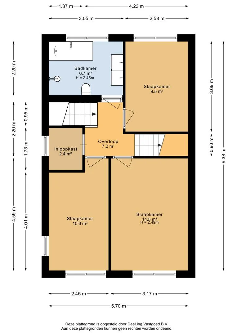
Op de eerste verdieping bevinden zich drie slaapkamers en een inloopkast. De badkamer is compleet en voorzien van een dubbele wastafel, ligbad, inloopdouche en mechanische ventilatie.
Op de tweede verdieping is te bereiken via een vaste gemoderniseerde trap. Hier bevindt zich de vierde slaapkamer, met veel ruimte vanwege een grote dakkapel ideaal als werkruimte, logeerkamer of tienerkamer. De rest van deze verdieping kan ingezet worden als 5e slaapkamer of speel- werk of opslagruimte. Er is nog een vergunning aanwezig voor het eventueel plaatsen van een dakkapel aan de voorzijde.
Buitenruimte:
De strakke voortuin met borders is gemakkelijk te onderhouden en de achtertuin is in 2021 volledig opnieuw aangelegd en verkeert sindsdien in zeer nette staat met berging en moderne overkapping. De tuin en berging achter het huis is goed bereikbaar via de zijkant van de woning (aan de voorkant langs).
Goed om te weten:
– Overdracht juli 2026
– Vier slaapkamers
– Royale woonkamer van 13 meter lang
– Betonnen vloer met vloerverwarming op de begane grond
– Keuken met deel vernieuwde apparatuur: koelkast, vaatwasser, heteluchtoven, Quooker en inductiekookplaat
– Geïsoleerde bijkeuken met nieuwe achterdeur
– Tuin volledig opnieuw aangelegd in 2021
– 12 zonnepanelen (430 Wp per paneel, totaal ±5000 Wp)
– Cv-ketel Intergas HRE (2016)
– Waterontharder aanwezig
– Schuifpui, achterdeur en dakkapel in kunststof uitgevoerd




















































