Omschrijving
Object verkocht: Einsteinweg 47 in Leeuwarden
Een unieke kans om de laatste bedrijfsunit te bemachtigen! De bouw van 9 nieuwbouw bedrijfsunits op bedrijventerrein De Zwette aan de westkant van Leeuwarden is inmiddels afgerond en bouwnummer 2 is nog beschikbaar. Einsteinweg 47 ter grootte van 590 m² vloeroppervlakte waarvan 400 m² bvo op de begane grond en 190 m² bvo op de verdieping. De unit staat op een kavel (eigen grond) van circa 800 m².
De bedrijfsunit kan voor verschillende doeleinden zoals showroom, werkplaats, opslag en kantoorruimte gebruikt worden. De bedrijfsunit is uiteraard ook interessant om aan te kopen als belegging! Het bedrijfsverzamelgebouw is met kwalitatief hoogwaardige materialen gebouwd. Daarnaast zijn er zoveel mogelijk duurzame elementen toegepast zoals hoogwaardige isolatie, geen gasaansluiting, voldoende groenvoorziening op het terrein, de voorbereiding voor elektrische laadpalen en de optie tot zonnepanelen.
De bereikbaarheid is uitstekend door de ligging van diverse uitvalswegen en de strategische ligging t.o.v. het centrum en de Haak om Leeuwarden. Binnen minuten bereikt u de N31, A31 en A32. De bedrijfsunit heeft een nette en esthetische uitstraling en het bedrijfsverzamelgebouw is geheel uniform gebouwd. Deze luxe en moderne bedrijfsunit is met het oog op duurzaamheid en met kwalitatief hoogwaardige materialen gebouwd.
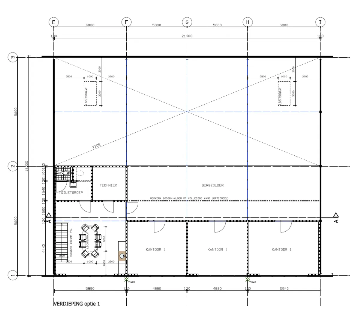
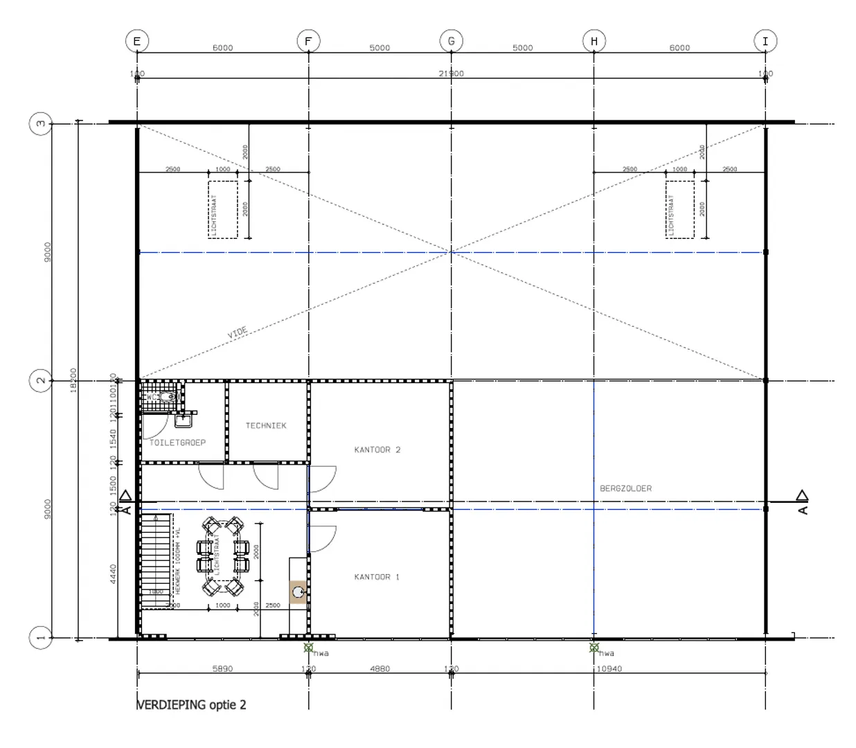
De bedrijfsunit heeft een afmeting van 22 meter breed en 18 meter diep en een vrije hoogte van 7.5 meter tot het dak en 4 meter tot de verdiepingsvloer. De vloerbelasting van de onderheide en gevlinderde betonvloer bedraagt 1500 kg/m2. Op de verdieping is middels een staalconstructie, houten balklaag en 22mm plaatmateriaal met een vloerbelasting van maximaal 300 kg/m2.
De onderste gevelmeter is uitgevoerd in een prefab betonnen plint die aan de buitenzijde is afgewerkt met ingewassen grind, dit geeft het geheel een strak en elegant aanzien. De gevel is uitgevoerd in grijze sandwichpanelen. De aluminiumkozijnen zijn uitgevoerd in de kleur zwart en de unit beschikt over een eigen geïsoleerde elektrische overheaddeur met afstandsbediening. De positie van de reclame-uiting op de gevels is verzorgd en is in stijl met het project. Het geheel heeft een moderne, statige en stijlvolle uitstraling.
De bedrijfsunits in dit bedrijfsverzamelgebouw wordt standaard casco opgeleverd met een basispakket aan voorzieningen. Er is een verdiepingsvloer aanwezig aan de voorzijde van de unit, langs de vier kozijnen in de voorgevel. Hiermee is op de verdieping 200 m² vloeroppervlakte gerealiseerd. De staalconstructie van de verdiepingsvloer is zo voorbereid dat deze gemakkelijk uitgebreid kan worden tot nog eens 200 m² bvo extra oppervlakte op de verdieping. Bij binnenkomst door de hoofdingang is de vaste trap naar de verdieping geplaatst. Daarnaast zijn er in de bedrijfsunit drie lichtkoepels geplaatst van 100x200cm waarvan één met dakuitstap.
Uiteraard kan de unit tegen een meerprijs en naar eigen wens, volledig gebruiksklaar opgeleverd worden. Onder andere de indeling van ruimtes zoals kantoren, spreekkamers of kantines, toiletten, keuken opstellingen, verlichting, (systeem)plafonds, elektrische en duurzame installaties voor verwarmen en koelen kunnen naar wens gerealiseerd worden. Om een beeld te krijgen van de opties is het mogelijk om voorbeeldprojecten op locatie te bezichtigen.
Als eigenaar van de bedrijfsunit neem je deel aan de reeds actieve beheervereniging.





























