Omschrijving
Bouwnummer onder optie: Zuiderkade Franeker – Woning (bouwnr. 21a) in Franeker
Wonen in de voormalige kerk aan de Zuiderkade – een unieke kans!
Ben jij op zoek naar een unieke woonruimte in Franeker? Aan de Zuiderkade is de kerk getransformeerd tot vijf hoogwaardige woningen en appartementen. De karakteristieke rode gevels, hoge raampartijen en authentieke details blijven behouden en vormen een uniek decor voor modern wooncomfort. Waar ooit kerkgangers samenkwamen, ontstaat nu een exclusieve woonomgeving waar historie en hedendaagse kwaliteit elkaar ontmoeten. Alle woningen zijn voorzien van luxe sanitair en tegelwerk, een mooie PVC vloer en keurig gestuukte wanden. Je kunt de woning dus zó betrekken! De keuken kun je nog volledig naar eigen smaak invullen; zo maak je de woning helemaal van jou.
Een gebouw met een verhaal | De voormalige kerk is al meer dan een eeuw beeldbepalend in Franeker. Met respect voor de oorspronkelijke architectuur wordt het gebouw volledig vernieuwd en verduurzaamd. De indrukwekkende kapconstructie, grote glasopeningen en monumentale entree blijven zichtbaar en geven deze woningen een sfeer die nergens anders te vinden is. Binnen de muren van deze kerk ontstaat een nieuw hoofdstuk: een fijne woonplek voor vijf unieke huishoudens, elk met een eigen karakter.
Via de gezamenlijke entree betreed je als toekomstige bewoner het gebouw. In de hal bevinden zich de brievenbussen en een algemene berging, ideaal voor het veilig stallen van fietsen.
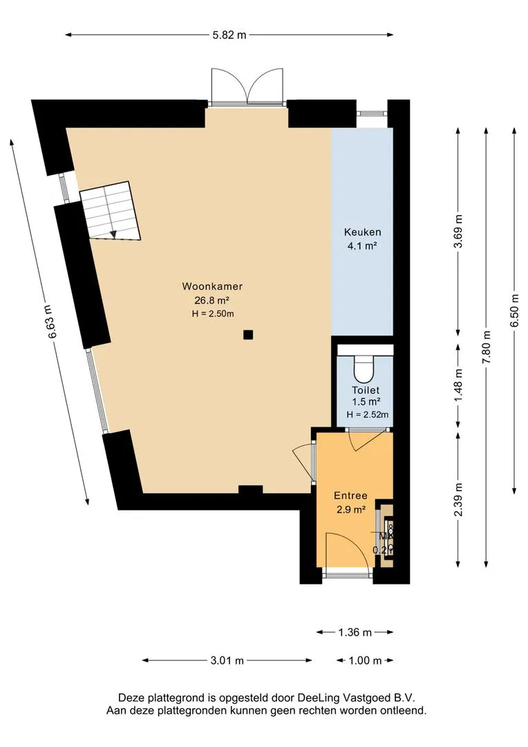
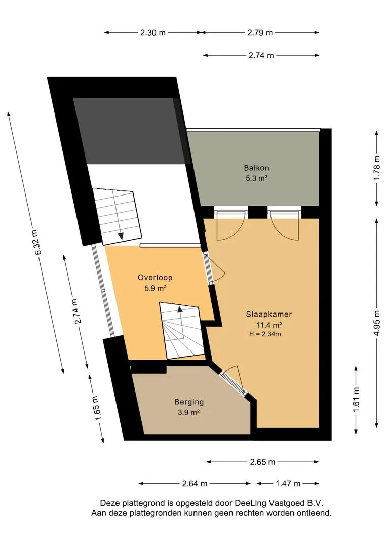
Woning 1 – Royale en speelse woning
Drie verdiepingen en een zolder: Met recht één van de meest bijzondere woningen binnen dit project. Indeling: hal met meterkast, toilet met fonteintje, ruime woonkeuken met een prachtige lichtinval dankzij het grote raam in de voorgevel en de openslaande deuren in de zijgevel, die toegang geven tot een klein terras op het westen. Dankzij de trapopgang met vide geniet je hier van een prachtige hoogtebeleving. Het originele glas-in-lood kerkraam zorgt voor extra lichtinval en vormt een sfeervol en karakteristiek detail. Het open karakter geeft de ruimte een moderne, loftachtige uitstraling en zorgt voor een directe verbinding met de rest van de woning. Op de eerste verdieping de woonkamer met frans balkon en een slaapkamer met badkamer en-suite. Op de tweede verdieping vind je de tweede slaapkamer met een balkon op het westen. De zolder is geschikt voor meerdere gebruiksdoeleinden.
Duurzaam en toekomstbestendig | Alle appartementen zijn voorzien van vloerverwarming, hoogwaardige isolatie en modern afwerkingsniveau. De transformatie voldoet aan de actuele eisen voor comfort, veiligheid en energiezuinigheid. Het energielabel is A+.
Wonen in Franeker | Franeker is een historische stad met een rijk cultureel verleden, gezellige binnenstad en uitstekende voorzieningen. De ligging aan de Elfstedenroute en nabij de Friese wateren maakt dit een geliefde plek voor levensgenieters. Met sfeervolle horeca, musea, winkels en goede verbindingen naar Leeuwarden en de rest van Friesland biedt Franeker het beste van twee werelden: de rust van het water, en het gemak van de stad dichtbij.
Een unieke combinatie van historie en luxe wooncomfort | Deze vijf woningen zijn stuk voor stuk uniek: geen standaard nieuwbouw, maar wonen met karakter in een gebouw met ziel. Een plek waar je iedere dag de bijzondere geschiedenis ervaart, gecombineerd met het gemak van modern wonen.
Bij aankoop van een appartement word je automatisch lid van de Vereniging van Eigenaars (VvE), die zorgt voor het beheer en onderhoud van de gemeenschappelijke delen van het gebouw.
Interesse? Neem contact op voor een bezichtiging of meer informatie.



























































