Omschrijving
Bouwnummer verkocht: Titelroas Boornbergum – Hoekwoning (bouwnr. 2) in Boornbergum
Titelroas Boornbergum
De verkoop is gestart! Iedereen krijgt de mogelijkheid om in te schijven tot 17 februari 12:00. Inschrijven is mogelijk via de brochure of via de volgende link: https://forms.office.com/e/cVeTyRR7xh
| SAMEN WONEN
In het boskavel in Boornbergum bevinden zich acht rug-aan-rug-woningen. Hier kun je leven samen met de andere bewoners. Middels hagen, verschillende verhardingstypen en geringe niveauverschillen zijn alle buitenruimtes zorgvuldig vormgegeven. Tegelijkertijd heb je als bewoner ook je eigen privéplek. De groene haagjes vormen een heerlijke beschutte zitplek voor elke woning.
| PRAKTISCH, COMPLEET & FUNCTIONEEL
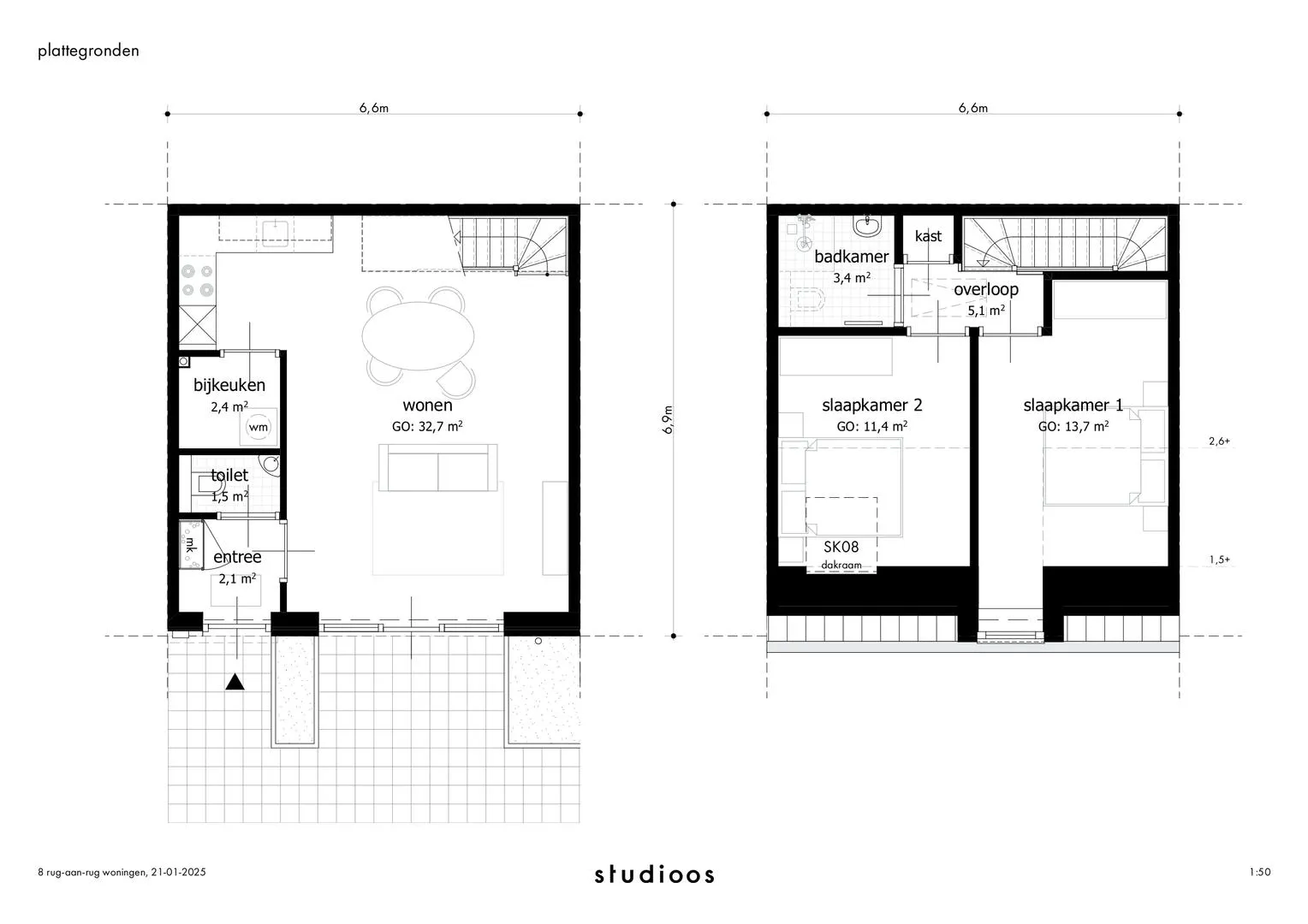
De woningen hebben met 72 m² een relatief gering woonoppervlak, maar zijn uiterst efficiënt te gebruiken. Je koopt deze compacte maar zeer complete en duurzame woning inclusief een eigen buitenberging. Er is voldoende parkeerruimte op het gezamenlijke terrein (één auto per woning) Hierbij heb je ook de mogelijkheid om een eigen parkeerplaats bij je woning te kopen.
| INDELING
De indeling van de woning is praktisch, open en functioneel; zo benut je de vierkante meters het best! Je stapt binnen in de hal met meterkast en toegang tot het toilet met fontein. De leefruimte met zithoek, eethoek en open keuken is maar liefst 32 m². Een fijne plek om thuis te komen. Vanuit de woonkamer is er toegang tot het beschutte terras. Middels de trapopgang bereik je de eerste verdieping waar zich twee ruime slaapkamers en een berging bevinden. De badkamer, ingericht met douche, wastafel en optioneel een tweede toilet, maakt de woning compleet.
Zie jij jezelf hier al wonen?
Wacht niet langer en schrijf je in!








