Omschrijving
Bouwnummer onder optie: Prinsenhoek Middelsee – Singelwoning (bouwnr. 8) in Leeuwarden
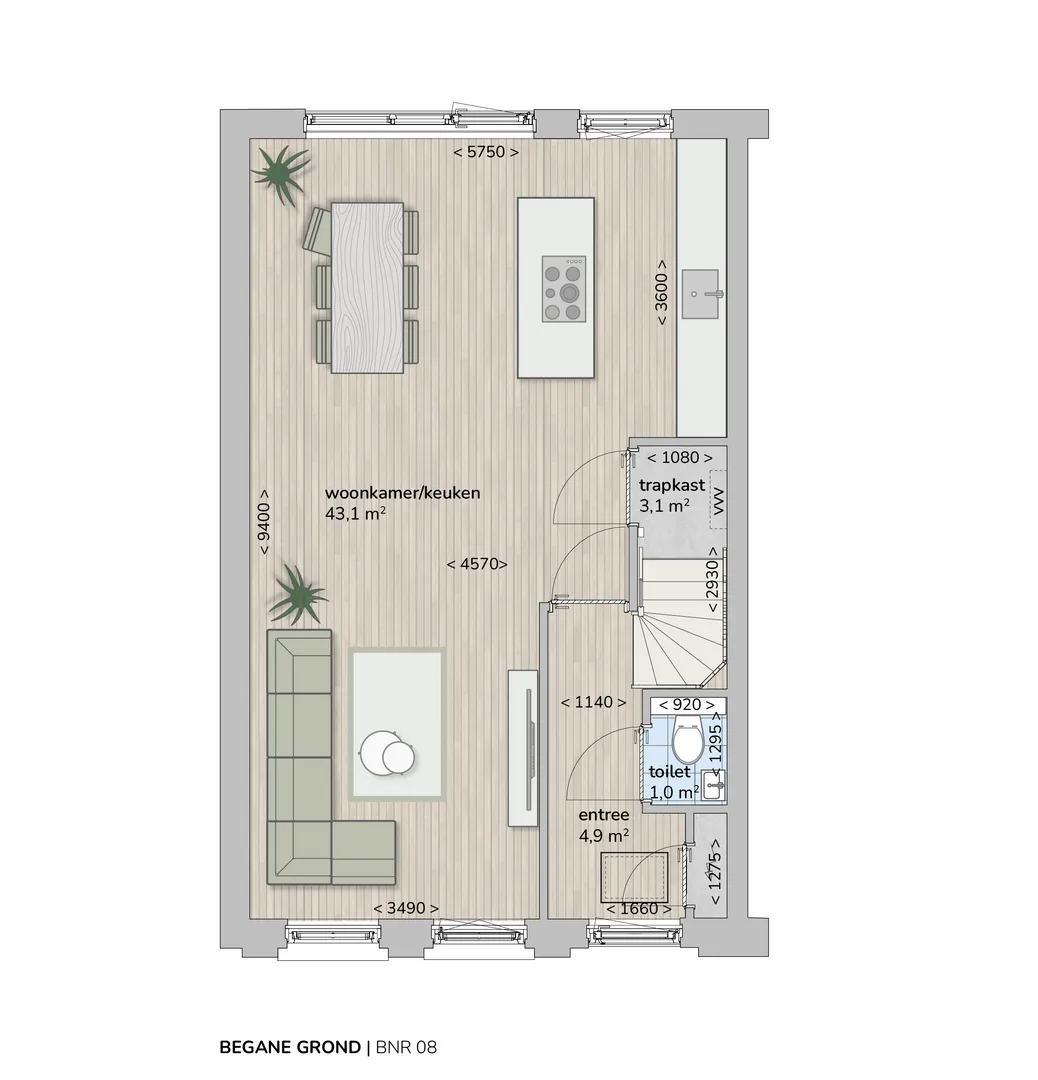
Charmante halfvrijstaande woning
Ten zuiden van het karakteristieke steegje, vertoef je heerlijk op de hoek van de middelste strook huizen. Aan de achterkant is jouw royale achtertuin rechtstreeks bereikbaar.
Deze halfvrijstaande woning met kenmerkende topgevel markeert het begin van de singelwoningen in fase B. De karakteristieke steeg leidt je achterom, rechtstreeks naar je achtertuin. Hier vind je ook je berging en parkeerplaats op je eigen erf. Via je voortuin gelegen aan het water betreed je de ruime hal. Binnenshuis vind je de woonkamer aan de voorzijde en geniet je optimale privacy aan de achterzijde.
Liever het kookgedeelte gezellig aan de straat, uitbouwen aan de achterzijde of extra klassieke elementen zoals een erker met balkon toevoegen? Ontdek alle mogelijkheden.












