Bouwnummer 32
Leeuwarden

€ 455.000 v.o.n.

  • A ++++
  • 2026
  • 130m²
  • 7 (3 slaapkamers)

Omschrijving

Bouwnummer onder optie: Pioniers Van Middelsee – Het Gemaal – Het Gemaal in Leeuwarden

Pioniers van Middelsee – Het Gemaal

De woningen van Het gemaal hebben dat herkenbare, stoere karakter dat je verwacht bij een oud stoomgemaal – meer dan nieuw, comfortabel en helemaal van nu. De 10 woningen van Het Gemaal delen dezelfde plattegrond, maar verschillen in breedte.

Kenmerken:
– woonoppervlakte van 130 m²
– 4 slaapkamers
– beukmaat van 5,7 meter

Binnen veel lichtinval, dankzij de hoge ramen. Vanuit de woonkamer openen twee deuren rechtstreeks naar je terras aan het water, pal op het zuiden. Je zit hier letterlijk aan de kade, met de gracht en het kabbelende water als je vaste uitzicht. Aan de voorkant heb je een eigen voortuin met een fietsen berging én een parkeerplek op eigen terrein.

Duurzaam en toekomstbestendig
Goed om te weten: doordat de woningen extra duurzaam zijn (A++++) profiteer je bij het afsluiten van je hypotheek van een rentevoordeel en kun je iets meer lenen. De woningen zijn extra duurzaam doordat tijdens de bouw gebruik wordt gemaakt van natuurlijke en hernieuwbare grondstoffen.
• Verwarming door aardwarmte
• Topkoeling (brengt zomers de temperatuur in huis enkele graden naar beneden)
• 7 Zonnepanelen per woning
• A++++ label met groenverklaring

Heb je vragen over deze woning? Laat dan je gegevens achter op de projectwebsite, of neem contact met ons op.

Specificaties

Overdracht

Status
onder optie
Koopprijs
€ 455.000 vrij op naam
Startdatum verkoop
07 februari 2026

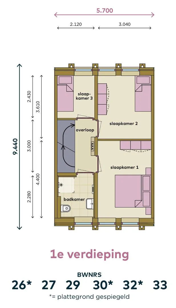
Indeling

Woonoppervlakte
130 m²
Woning Inhoud
532 m³
Kamers
7 (3 slaapkamers)

Bouw

Bouwvorm
Nieuwbouw
Type Object
Woonhuis
Bouwjaar
2026

Energie

Energielabel
A ++++
Contact met de makelaar

WP Makelaar

Bouwnummer is onder optie

Interesse in Bouwnummer 32?