Omschrijving
Bouwnummer onder optie: Pioniers Van Middelsee – Het Gemaal – Het Gemaal in Leeuwarden
Pioniers van Middelsee – Het Gemaal
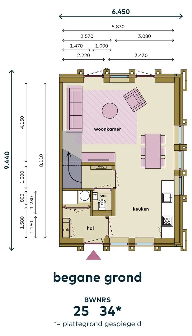
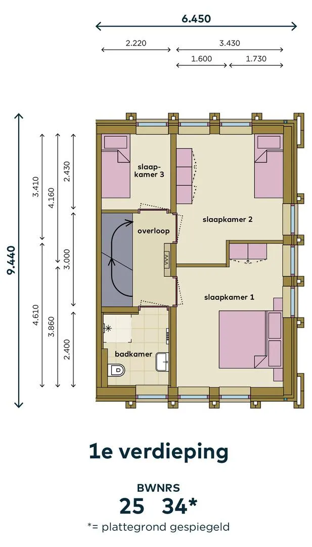
De woningen van Het gemaal hebben dat herkenbare, stoere karakter dat je verwacht bij een oud stoomgemaal – meer dan nieuw, comfortabel en helemaal van nu. De 10 woningen van Het Gemaal delen dezelfde plattegrond, maar verschillen in breedte. Dit bouwnummers heeft een topgevel, wat zorgt voor extra hoogte op zolder.
Binnen veel lichtinval, dankzij de hoge ramen. Vanuit de woonkamer openen twee deuren rechtstreeks naar je terras aan het water, pal op het zuiden. Je zit hier letterlijk aan de kade, met de gracht en het kabbelende water als je vaste uitzicht. Aan de voorkant heb je een eigen voortuin met een fietsen berging én een parkeerplek op eigen terrein.
Duurzaam en toekomstbestendig
Goed om te weten: doordat de woningen extra duurzaam zijn (A++++) profiteer je bij het afsluiten van je hypotheek van een rentevoordeel en kun je iets meer lenen. De woningen zijn extra duurzaam doordat tijdens de bouw gebruik wordt gemaakt van natuurlijke en hernieuwbare grondstoffen.
• Verwarming door aardwarmte
• Topkoeling (brengt zomers de temperatuur in huis enkele graden naar beneden)
• 10 Zonnepanelen per woning (afhankelijk van het woningtype)
• A++++ label met groenverklaring
Kenmerken:
– woonoppervlakte van 142 m²
– 4 slaapkamers
– beukmaat van 6,4 meter
Heb je vragen over deze woning? Laat dan je gegevens achter op de projectwebsite, of neem contact met ons op.















