Omschrijving
Bouwnummer verkocht: It Partoer – De Foarynse (bouwnr. 6-type A) in Sneek
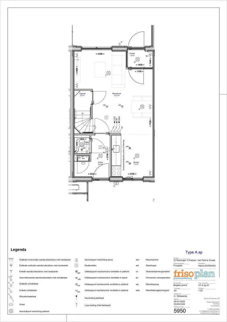
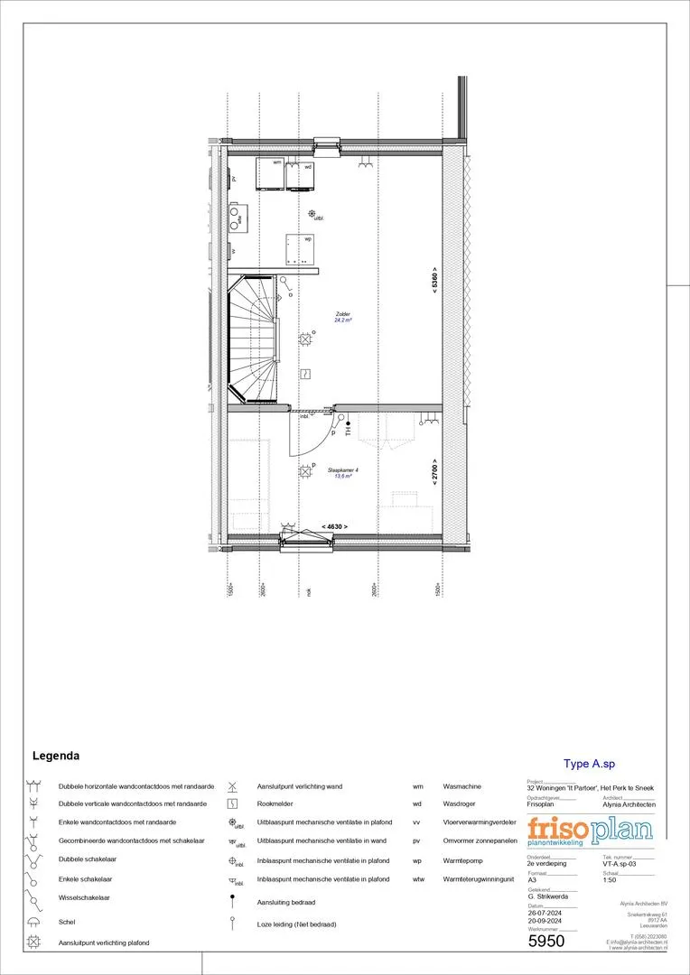
Woningtype A bestaat uit drie woonlagen. Bij het betreden van woningtype A tref je op de begane grond eerst een hal met een toilet en de meterkast. De woonkamer/keuken biedt ruimte voor een keukenopstelling, zitkamer en eethoek. Indien gewenst kan de keuken ook aan de achterzijde gesitueerd worden (meerwerk). Aan de achterzijde van de woning bevindt zich, pal op het zuiden een houten steiger met toegang tot het water. In de woning bevindt zich een inpandig achterportaal. Dit portaal is speciaal ontworpen als geluidssluis. Daarnaast biedt deze ruimte de mogelijkheid om spulletjes voor het terras op te bergen of bijvoorbeeld als portaal voor schoenen en jassen. Op de eerste verdieping bevinden zich drie slaapkamers en een badkamer. De grootste slaapkamer heeft voldoende ruimte voor een royale kastenwand. De badkamer is uitgerust met sanitair van Villeroy en Boch. De kozijnen op deze verdieping krijgen aan de waterzijde gedeeltelijk akoestische louvres. Tot slot heeft deze woning nog een zolderverdieping met een vierde slaapkamer of werkkamer, via een vaste trap bereikbaar en met royale stahoogte.
Inschrijven kan via www.hetperk.nl


























