Omschrijving
Bouwnummer beschikbaar: It Partoer – De Achterynse (bouwnr. 22-type C) in Sneek
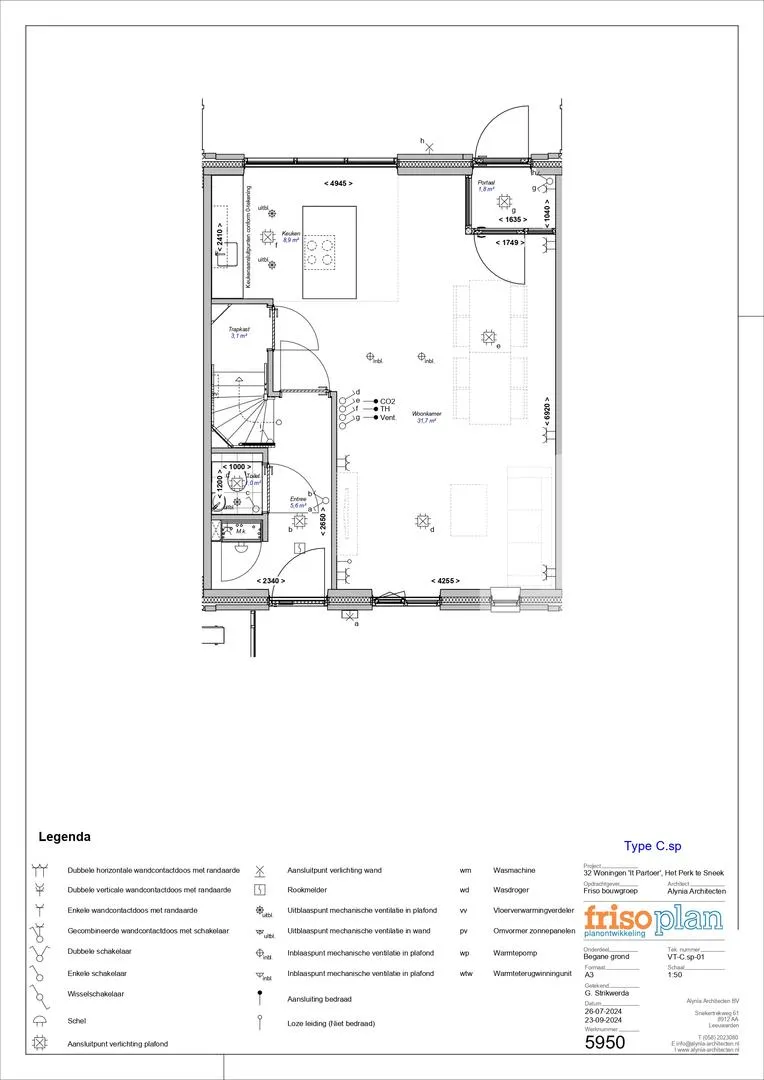
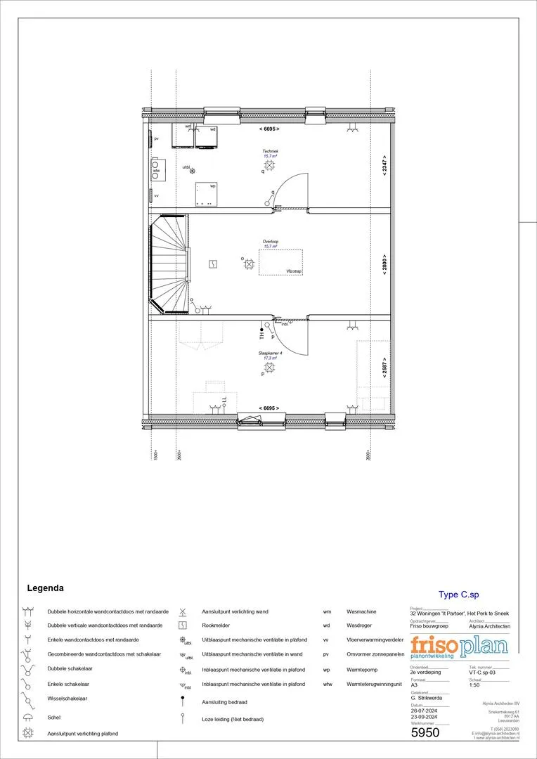
Type C springt er letterlijk met kop en schouders bovenuit. Dit noemen we ook wel de grote gezinswoning met maar liefst 3 woonlagen en nog een ruime vliering op derde verdieping. Deze woning biedt volop mogelijkheden, denk bijvoorbeeld aan een extra badkamer en/of slaapkamer op de 2de verdieping. Onze woonadviseur denkt graag met je mee over de ideale inrichting. Bij het betreden van woningtype C tref je op de begane grond eerst een hal met een toilet en de meterkast. De woonkamer/keuken biedt ruimte voor een keukenopstelling, zitkamer en eethoek. Indien gewenst kan de keuken ook aan de voorzijde gesitueerd worden (meerwerk). Aan de voorzijde van de woning bevindt zich een voortuin met berging. Aan de achterzijde van de woning bevindt zich, pal op het zuiden een houten steiger met toegang tot het water. In de woning bevindt zich een inpandig voorportaal. Dit portaal is speciaal ontworpen als geluidssluis. Daarnaast biedt deze ruimte de mogelijkheid om spulletjes voor het terras op te bergen of bijvoorbeeld als portaal voor schoenen en jassen. Op de eerste verdieping bevinden zich drie slaapkamers en een badkamer. De grootste slaapkamer heeft voldoende ruimte voor een royale kastenwand. De badkamer is standaard uitgerust met sanitair van Villeroy en Boch. De kozijnen op deze verdieping krijgen aan de waterzijde gedeeltelijk akoestische louvres. Op de tweede verdieping bevindt zich naast de slaapkamer en overloop de technische ruimte. Technische ruimte splitsen en een hobbykamer creëren? Informeer naar de mogelijkheden. Op de vliering is een nokhoogte van circa 2 meter. Dit biedt volop opberg mogelijkheden. De vliering is via een vlizo trap toegankelijk. Daarnaast bestaat de mogelijkheid om er een vaste trapopgang (meerwerk) van te maken. De mogelijkheden zijn eindeloos.
Inschrijven kan via www.hetperk.nl


























