Omschrijving
Bouwnummer verkocht: Het Bolwerk – Geschakelde Woning in Leeuwarden
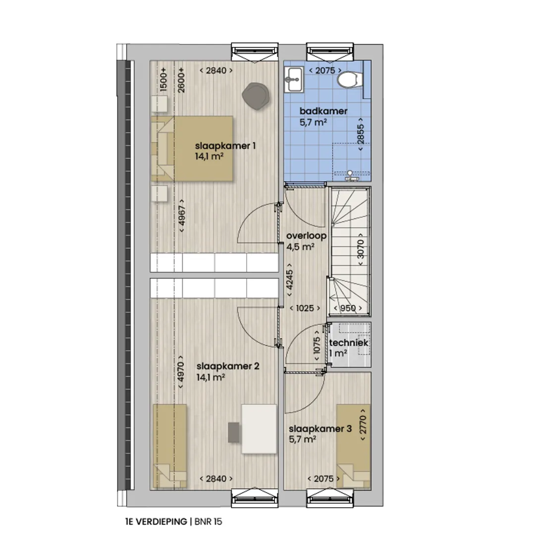
Tussenwoning type A
In de luwte van de hoekwoning stap je je sfeervolle tussenwoning binnen. Van voor tot achter heb je zicht op het water, dus woon je liever aan de straatkant of juist aan de tuin?
Deze stijlvolle tussenwoning onderscheidt zich door de diepte. Hierdoor doen de twee woonlagen zeer ruim aan. In het leefgedeelte heb je zicht van voor tot achter, met om de hoek een praktische bijkeuken. Drie slaapkamers en een lichte badkamer maken het plaatje compleet. Naar wens breidt de aannemer de woonkamer/keuken voor je uit en kun je de bijkeuken laten vervallen voor de meeste ruimtelijke variant. Informeer gerust naar de indelingsmogelijkheden.
Aan de achterzijde heb je een eigen tuin met (fietsen)berging en privé parkeerplaats. Of een eigen parkeerplaats in het aangrenzende gemeenschappelijke middengebied.
Kenmerken:
+ 108 m² woonoppervlakte
+ 130 m² perceeloppervlakte
+ tussenwoning
+ 2 woonlagen
+ 3 slaapkamers
En elk huis heeft een eigen gevelkleur, dus er is geen woning zoals die van jou! Natuurlijk mogen klassieke details zoals rollagen, de raamindeling met stenen vensterbanken en een bijzondere ‘sluitsteen’ met je eigen huisnummers niet ontbreken. Zo onderscheidt Het Bolwerk zich als een charmant stukje Wetterstêd.
Wil je meer informatie over de woningen? Neem dan een kijkje op de projectwebsite of neem contact met ons op.





