Omschrijving
Bouwnummer onder optie: De Tunen – Woning (bouwnr. 3) in Ryptsjerk
DIT PROJECT GAAT DOOR EN JIJ KUNT DEGENE ZIJN DIE DAT MOGELIJK MAAKT!
Zes splinternieuwe woningen, zorgvuldig ontworpen om niet alleen prachtig en comfortabel te wonen, maar ook slim en toekomstbestendig. Hier vind je wonen op z’n best: duurzaam, energetisch verantwoord, en met het comfort waar je vandaag én morgen blij van wordt.
Wonen aan de Tunen
In het hart van de Noordelijke Friese Wouden ligt het sfeervolle dorp Ryptsjerk – een plek waar de tijd nog even stilstaat en buren elkaar écht kennen. Een dorp wat op een steenworp afstand van Gytsjerk en Hurdegaryp met al haar voorzieningen ligt. Aan de rand van de bossen en het prachtige Vijversburg.
Ryptsjerk is een karaktervol dorp met een bruisend verenigingsleven en diepgewortelde tradities. Het is een dorp om in thuis te komen.
Aan de noordzijde van het historische dorpshart vind je de Tunen, een kleinschalige uitbreidingswijk omzoomd door houtsingels en hoge bomen. Hier ontwikkelt Planhus zes schitterende halfvrijstaande gezinswoningen, elk op een royaal perceel en met oog voor sfeer, duurzaamheid en leefcomfort.
Architectuur met een verhaal
De woningen zijn geïnspireerd op de traditionele Friese blokschuur – robuust, functioneel en tijdloos. De eenvoudige vierkante hoofdvorm refereert aan het landelijke karakter van de streek, waarin hooischuren en erfbebouwing het landschap typeren. De woningen met hoekligging krijgen standaard een overkapping naast het huis.
Comfortabel wonen
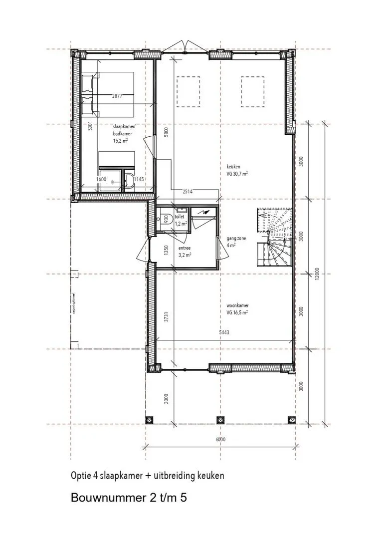
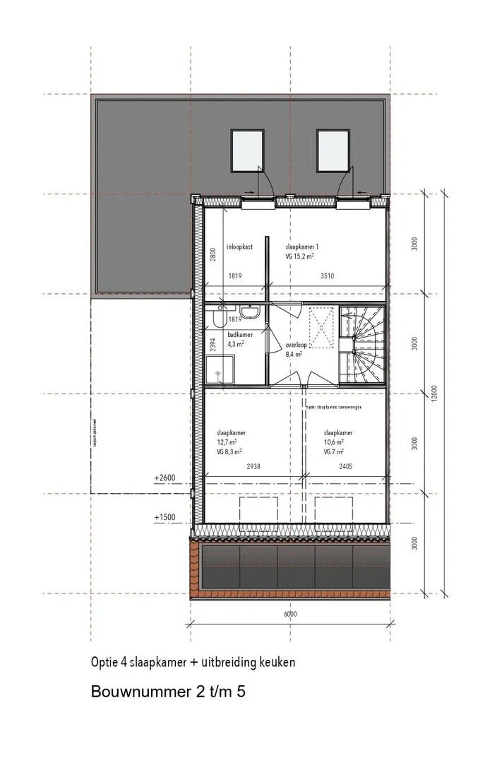
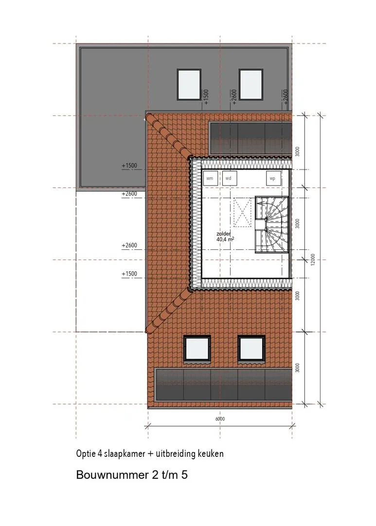
De woningen zijn toekomstgericht en onderhoudsarm – voorzien van een warmtepomp, zonnepanelen, vloerverwarming (mét topkoeling) en een warmte-terug-win-installatie. Binnen is het genieten van een doordachte indeling. Op de begane grond bevinden zich de lichte woonkamer en eetkamer met openslaande deuren aan zowel de voor- als achterzijde – binnen en buiten lopen naadloos in elkaar over. Je kunt heerlijk genieten onder de standaard geplaatste overdekte veranda aan de voorzijden van de woning. Op de eerste verdieping zijn drie ruime slaapkamers en een badkamer te vinden. De master bedroom beschikt zelfs over een eigen inloopkast! Via een vaste trap bereik je de tweede verdieping, waar ruimte is voor een extra slaapkamer én de opstelplaats voor wasmachine en droger.
Wat maakt deze woningen bijzonder?
Elke woning biedt volop mogelijkheden om naar wens aan te passen. Denk aan een slaap- en badkamer op de begane grond, een bijkeuken, een uitbouw van de woonkamer, een extra overkapping of een carport. Zo maak je van jouw nieuwe huis écht een thuis.














