Omschrijving
Bouwnummer verkocht onder voorbehoud: De Floreen – Appartement (bouwnr. A3) in Leeuwarden
Middelsee krijgt een nieuw kroonjuweel: De Floreen. Met de entree aan het levendige Wetterplein, omgeven door water en geflankeerd door natuurschoon. De luxe appartementen hebben vanuit hier zicht in alle windrichtingen.
Centraal gelegen in Wetterstêd in de wijk Middelsee in Leeuwarden, ontwaart De Floreen zich op de kade. Bootjes varen langs en dobberen rond. Vanuit hier dient de vrijheid van de natuur zich net zo gemakkelijk aan als de verleiding van de stad. Of ervaar het beste van deze twee werelden en trek u terug op uw ruime privé terras, na een ommetje door de lommerrijke buurt.
Gelegen aan de gelijknamige straat en de Middelseefeart vindt u De Floreen. Met een verhoogde majestueuze entree aan het Wetterplein.
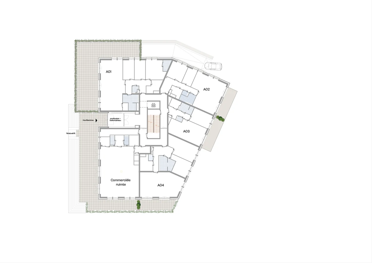
Begane grond
De eerste woonlaag van De Floreen herbergt 4 appartementen. Variërend in oppervlakte, aantal kamers en indeling. Maar in alle gevallen heeft u de (buiten)wereld aan uw voeten. Ook omdat de begane grond 1,5 meter hoger ligt, waardoor u veel privacy heeft. De 3,5 meter hoge plafonds bij de entree van het gebouw, worden doorgetrokken in de appartementen op de begane grond. Dit creëert een ruimtelijke en chique uitstraling.
Appartement A03
Hier grenzen de slaapkamer en woonkamer beiden aan het balkon aan het water. Dankzij de praktische indeling haalt u alles uit het appartement en de omgeving. De vaste plantenbak op het balkon is natuurinclusief.
Woonoppervlakte: 68m2
Balkon: 16,5m2
Slaapkamers: 1
Ligging: Oost
Parkeerplaats: P03
Berging: b03







